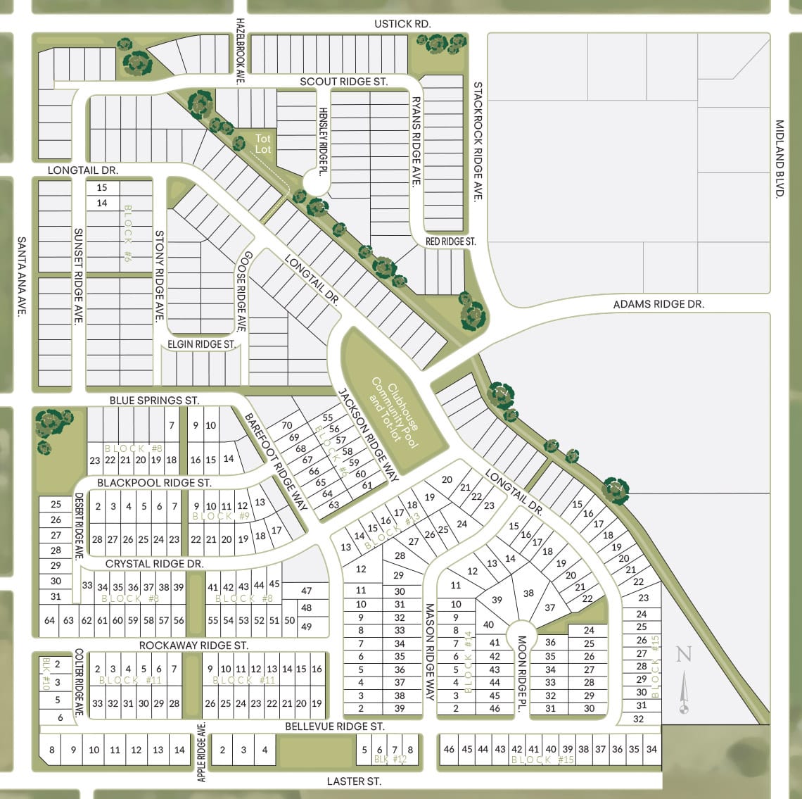
Interactive Site Plan for Adams Ridge
Return to Adams Ridge
Adams Ridge - Block
10 , Lot
2
Lot Information
| Availability |
Sold
|
| Block |
10
|
| Lot Number |
2
|
Adams Ridge - Block
10 , Lot
3
Lot Information
| Availability |
Sold
|
| Block |
10
|
| Lot Number |
3
|
Topaz
| Model Name | Topaz |
| Bedrooms | 4 - 5 |
| Bathrooms |
3.5
|
| Sq Ft | 3,064 |
| Garage | 3 |
Adams Ridge - Block
10 , Lot
5
Lot Information
| Availability |
Sold
|
| Block |
10
|
| Lot Number |
5
|
Brooke
| Model Name | Brooke |
| Bedrooms | 3 - 5 |
| Bathrooms |
2 - 3
|
| Sq Ft | 2,286 |
| Garage | 2 |
Adams Ridge - Block
10 , Lot
6
Lot Information
| Availability |
Under Contract
|
| Block |
10
|
| Lot Number |
6
|
Adams Ridge - Block
10 , Lot
8
Lot Information
| Availability |
Sold
|
| Block |
10
|
| Lot Number |
8
|
Crestwood
| Model Name | Crestwood |
| Bedrooms | 3 - 4 |
| Bathrooms |
2
|
| Sq Ft | 2,009 |
| Garage | 2 |
Crestwood
| Model Name | Crestwood |
| Bedrooms | 3 |
| Bathrooms |
2
|
| Sq Ft | 2,009 |
| Garage | 2 |
| Address | 10436 Bellevue Ridge St |
Adams Ridge - Block
10 , Lot
9
Lot Information
| Availability |
Sold
|
| Block |
10
|
| Lot Number |
9
|
Alturas
| Model Name | Alturas |
| Bedrooms | 3 |
| Bathrooms |
2
|
| Sq Ft | 1,446 |
| Garage | 2 |
Alturas
| Model Name | Alturas |
| Bedrooms | 3 |
| Bathrooms |
2
|
| Sq Ft | 1,446 |
| Garage | 2 |
| Address | 17543 Colter Ridge Ave |
Adams Ridge - Block
10 , Lot
10
Lot Information
| Availability |
Sold
|
| Block |
10
|
| Lot Number |
10
|
Adams Ridge - Block
10 , Lot
11
Lot Information
| Availability |
Sold
|
| Block |
10
|
| Lot Number |
11
|
Adams Ridge - Block
10 , Lot
12
Lot Information
| Availability |
Sold
|
| Block |
10
|
| Lot Number |
12
|
Topaz
| Model Name | Topaz |
| Bedrooms | 4 - 5 |
| Bathrooms |
3.5
|
| Sq Ft | 3,064 |
| Garage | 3 |
Adams Ridge - Block
10 , Lot
13
Lot Information
| Availability |
Sold
|
| Block |
10
|
| Lot Number |
13
|
Adams Ridge - Block
10 , Lot
14
Lot Information
| Availability |
Available
|
| Block |
10
|
| Lot Number |
14
|
Adams Ridge - Block
11 , Lot
2
Lot Information
| Availability |
Sold
|
| Block |
11
|
| Lot Number |
2
|
Everest
| Model Name | Everest |
| Bedrooms | 3 - 4 |
| Bathrooms |
2.5
|
| Sq Ft | 1,700 |
| Garage | 2 |
Everest
| Model Name | Everest |
| Bedrooms | 4 |
| Bathrooms |
2
|
| Sq Ft | 1,700 |
| Garage | 2 |
| Address | 10092 Longtail Drive |
Everest
| Model Name | Everest |
| Bedrooms | 4 |
| Bathrooms |
2
|
| Sq Ft | 1,700 |
| Garage | 2 |
| Address | 10104 Longtail Drive |
Adams Ridge - Block
11 , Lot
3
Lot Information
| Availability |
Sold
|
| Block |
11
|
| Lot Number |
3
|
Ashton
| Model Name | Ashton |
| Bedrooms | 3 |
| Bathrooms |
2
|
| Sq Ft | 1,466 |
| Garage | 2 |
Ashton
| Model Name | Ashton |
| Bedrooms | 3 |
| Bathrooms |
2
|
| Sq Ft | 1,466 |
| Garage | 2 |
| Address | 10084 Longtail Drive |
Ashton
| Model Name | Ashton |
| Bedrooms | 3 |
| Bathrooms |
2
|
| Sq Ft | 1,466 |
| Garage | 2 |
| Address | 10080 Longtail Drive |
Ashton
| Model Name | Ashton |
| Bedrooms | 3 |
| Bathrooms |
2
|
| Sq Ft | 1,466 |
| Garage | 2 |
| Address | 10076 Longtail Drive |
Ashton
| Model Name | Ashton |
| Bedrooms | 3 |
| Bathrooms |
2
|
| Sq Ft | 1,466 |
| Garage | 2 |
| Address | 10100 Longtail Drive |
Adams Ridge - Block
11 , Lot
4
Lot Information
| Availability |
Sold
|
| Block |
11
|
| Lot Number |
4
|
Alturas
| Model Name | Alturas |
| Bedrooms | 3 |
| Bathrooms |
2
|
| Sq Ft | 1,446 |
| Garage | 2 |
Alturas
| Model Name | Alturas |
| Bedrooms | 3 |
| Bathrooms |
2
|
| Sq Ft | 1,446 |
| Garage | 2 |
| Address | 17543 Colter Ridge Ave |
Adams Ridge - Block
11 , Lot
5
Lot Information
| Availability |
Sold
|
| Block |
11
|
| Lot Number |
5
|
Brooke
| Model Name | Brooke |
| Bedrooms | 3 - 5 |
| Bathrooms |
2 - 3
|
| Sq Ft | 2,286 |
| Garage | 2 |
Adams Ridge - Block
11 , Lot
6
Lot Information
| Availability |
Sold
|
| Block |
11
|
| Lot Number |
6
|
Crestwood
| Model Name | Crestwood |
| Bedrooms | 3 - 4 |
| Bathrooms |
2
|
| Sq Ft | 2,009 |
| Garage | 2 |
Crestwood
| Model Name | Crestwood |
| Bedrooms | 3 |
| Bathrooms |
2
|
| Sq Ft | 2,009 |
| Garage | 2 |
| Address | 10436 Bellevue Ridge St |
Adams Ridge - Block
11 , Lot
7
Lot Information
| Availability |
Sold
|
| Block |
11
|
| Lot Number |
7
|
Birch
| Model Name | Birch |
| Bedrooms | 3 |
| Bathrooms |
2
|
| Sq Ft | 1,620 |
| Garage | 2 |
Adams Ridge - Block
11 , Lot
9
Lot Information
| Availability |
Sold
|
| Block |
11
|
| Lot Number |
9
|
Alturas
| Model Name | Alturas |
| Bedrooms | 3 |
| Bathrooms |
2
|
| Sq Ft | 1,446 |
| Garage | 2 |
Alturas
| Model Name | Alturas |
| Bedrooms | 3 |
| Bathrooms |
2
|
| Sq Ft | 1,446 |
| Garage | 2 |
| Address | 17543 Colter Ridge Ave |
Adams Ridge - Block
11 , Lot
10
Lot Information
| Availability |
Sold
|
| Block |
11
|
| Lot Number |
10
|
Brooke
| Model Name | Brooke |
| Bedrooms | 3 - 5 |
| Bathrooms |
2 - 3
|
| Sq Ft | 2,286 |
| Garage | 2 |
Adams Ridge - Block
11 , Lot
11
Lot Information
| Availability |
Sold
|
| Block |
11
|
| Lot Number |
11
|
Crestwood
| Model Name | Crestwood |
| Bedrooms | 3 - 4 |
| Bathrooms |
2
|
| Sq Ft | 2,009 |
| Garage | 2 |
Crestwood
| Model Name | Crestwood |
| Bedrooms | 3 |
| Bathrooms |
2
|
| Sq Ft | 2,009 |
| Garage | 2 |
| Address | 10436 Bellevue Ridge St |
Adams Ridge - Block
11 , Lot
12
Lot Information
| Availability |
Sold
|
| Block |
11
|
| Lot Number |
12
|
Adams Ridge - Block
11 , Lot
13
Lot Information
| Availability |
Sold
|
| Block |
11
|
| Lot Number |
13
|
Everest
| Model Name | Everest |
| Bedrooms | 3 - 4 |
| Bathrooms |
2.5
|
| Sq Ft | 1,700 |
| Garage | 2 |
Everest
| Model Name | Everest |
| Bedrooms | 4 |
| Bathrooms |
2
|
| Sq Ft | 1,700 |
| Garage | 2 |
| Address | 10092 Longtail Drive |
Everest
| Model Name | Everest |
| Bedrooms | 4 |
| Bathrooms |
2
|
| Sq Ft | 1,700 |
| Garage | 2 |
| Address | 10104 Longtail Drive |
Adams Ridge - Block
11 , Lot
14
Lot Information
| Availability |
Sold
|
| Block |
11
|
| Lot Number |
14
|
Garnet
| Model Name | Garnet |
| Bedrooms | 4 - 6 |
| Bathrooms |
2.5 - 4
|
| Sq Ft | 2,807 |
| Garage | 2 |
Adams Ridge - Block
11 , Lot
15
Lot Information
| Availability |
Sold
|
| Block |
11
|
| Lot Number |
15
|
Adams Ridge - Block
11 , Lot
16
Lot Information
| Availability |
Sold
|
| Block |
11
|
| Lot Number |
16
|
Everest
| Model Name | Everest |
| Bedrooms | 3 - 4 |
| Bathrooms |
2.5
|
| Sq Ft | 1,700 |
| Garage | 2 |
Everest
| Model Name | Everest |
| Bedrooms | 4 |
| Bathrooms |
2
|
| Sq Ft | 1,700 |
| Garage | 2 |
| Address | 10092 Longtail Drive |
Everest
| Model Name | Everest |
| Bedrooms | 4 |
| Bathrooms |
2
|
| Sq Ft | 1,700 |
| Garage | 2 |
| Address | 10104 Longtail Drive |
Adams Ridge - Block
11 , Lot
19
Lot Information
| Availability |
Sold
|
| Block |
11
|
| Lot Number |
19
|
Birch
| Model Name | Birch |
| Bedrooms | 3 |
| Bathrooms |
2
|
| Sq Ft | 1,620 |
| Garage | 2 |
Adams Ridge - Block
11 , Lot
20
Lot Information
| Availability |
Sold
|
| Block |
11
|
| Lot Number |
20
|
Alturas
| Model Name | Alturas |
| Bedrooms | 3 |
| Bathrooms |
2
|
| Sq Ft | 1,446 |
| Garage | 2 |
Alturas
| Model Name | Alturas |
| Bedrooms | 3 |
| Bathrooms |
2
|
| Sq Ft | 1,446 |
| Garage | 2 |
| Address | 17543 Colter Ridge Ave |
Adams Ridge - Block
11 , Lot
21
Lot Information
| Availability |
Sold
|
| Block |
11
|
| Lot Number |
21
|
Brooke
| Model Name | Brooke |
| Bedrooms | 3 - 5 |
| Bathrooms |
2 - 3
|
| Sq Ft | 2,286 |
| Garage | 2 |
Adams Ridge - Block
11 , Lot
22
Lot Information
| Availability |
Sold
|
| Block |
11
|
| Lot Number |
22
|
Crestwood
| Model Name | Crestwood |
| Bedrooms | 3 - 4 |
| Bathrooms |
2
|
| Sq Ft | 2,009 |
| Garage | 2 |
Crestwood
| Model Name | Crestwood |
| Bedrooms | 3 |
| Bathrooms |
2
|
| Sq Ft | 2,009 |
| Garage | 2 |
| Address | 10436 Bellevue Ridge St |
Adams Ridge - Block
11 , Lot
23
Lot Information
| Availability |
Available
|
| Block |
11
|
| Lot Number |
23
|
Adams Ridge - Block
11 , Lot
24
Lot Information
| Availability |
Available
|
| Block |
11
|
| Lot Number |
24
|
Adams Ridge - Block
11 , Lot
25
Lot Information
| Availability |
Available
|
| Block |
11
|
| Lot Number |
25
|
Adams Ridge - Block
11 , Lot
26
Lot Information
| Availability |
Available
|
| Block |
11
|
| Lot Number |
26
|
Adams Ridge - Block
11 , Lot
28
Lot Information
| Availability |
Sold
|
| Block |
11
|
| Lot Number |
28
|
Brooke
| Model Name | Brooke |
| Bedrooms | 3 - 5 |
| Bathrooms |
2 - 3
|
| Sq Ft | 2,286 |
| Garage | 2 |
Adams Ridge - Block
11 , Lot
29
Lot Information
| Availability |
Sold
|
| Block |
11
|
| Lot Number |
29
|
Alturas
| Model Name | Alturas |
| Bedrooms | 3 |
| Bathrooms |
2
|
| Sq Ft | 1,446 |
| Garage | 2 |
Alturas
| Model Name | Alturas |
| Bedrooms | 3 |
| Bathrooms |
2
|
| Sq Ft | 1,446 |
| Garage | 2 |
| Address | 17543 Colter Ridge Ave |
Adams Ridge - Block
11 , Lot
30
Lot Information
| Availability |
Sold
|
| Block |
11
|
| Lot Number |
30
|
Birch
| Model Name | Birch |
| Bedrooms | 3 |
| Bathrooms |
2
|
| Sq Ft | 1,620 |
| Garage | 2 |
Adams Ridge - Block
11 , Lot
31
Lot Information
| Availability |
Sold
|
| Block |
11
|
| Lot Number |
31
|
Adams Ridge - Block
11 , Lot
32
Lot Information
| Availability |
Sold
|
| Block |
11
|
| Lot Number |
32
|
Alturas
| Model Name | Alturas |
| Bedrooms | 3 |
| Bathrooms |
2
|
| Sq Ft | 1,446 |
| Garage | 2 |
Alturas
| Model Name | Alturas |
| Bedrooms | 3 |
| Bathrooms |
2
|
| Sq Ft | 1,446 |
| Garage | 2 |
| Address | 17543 Colter Ridge Ave |
Adams Ridge - Block
11 , Lot
33
Lot Information
| Availability |
Sold
|
| Block |
11
|
| Lot Number |
33
|
Everest
| Model Name | Everest |
| Bedrooms | 3 - 4 |
| Bathrooms |
2.5
|
| Sq Ft | 1,700 |
| Garage | 2 |
Everest
| Model Name | Everest |
| Bedrooms | 4 |
| Bathrooms |
2
|
| Sq Ft | 1,700 |
| Garage | 2 |
| Address | 10092 Longtail Drive |
Everest
| Model Name | Everest |
| Bedrooms | 4 |
| Bathrooms |
2
|
| Sq Ft | 1,700 |
| Garage | 2 |
| Address | 10104 Longtail Drive |
Adams Ridge - Block
12 , Lot
2
Lot Information
| Availability |
Unavailable
|
| Block |
12
|
| Lot Number |
2
|
Alturas
| Model Name | Alturas |
| Bedrooms | 3 |
| Bathrooms |
2
|
| Sq Ft | 1,446 |
| Garage | 2 |
| Price | $ 366,990 |
Alturas
| Model Name | Alturas |
| Bedrooms | 3 |
| Bathrooms |
2
|
| Sq Ft | 1,446 |
| Garage | 2 |
| Price | $ 373,990 |
| Address | 17543 Colter Ridge Ave |
Adams Ridge - Block
12 , Lot
3
Lot Information
| Availability |
Unavailable
|
| Block |
12
|
| Lot Number |
3
|
Spruce
| Model Name | Spruce |
| Bedrooms | 4 - 7 |
| Bathrooms |
2.5 - 4
|
| Sq Ft | 3,065 |
| Garage | 2 |
| Price | $ 466,990 |
Adams Ridge - Block
12 , Lot
4
Lot Information
| Availability |
Available
|
| Block |
12
|
| Lot Number |
4
|
Adams Ridge - Block
12 , Lot
5
Lot Information
| Availability |
Sold
|
| Block |
12
|
| Lot Number |
5
|
Garnet
| Model Name | Garnet |
| Bedrooms | 4 - 6 |
| Bathrooms |
2.5 - 4
|
| Sq Ft | 2,807 |
| Garage | 2 |
Adams Ridge - Block
12 , Lot
6
Lot Information
| Availability |
Sold
|
| Block |
12
|
| Lot Number |
6
|
Adams Ridge - Block
12 , Lot
7
Lot Information
| Availability |
Sold
|
| Block |
12
|
| Lot Number |
7
|
Ashton
| Model Name | Ashton |
| Bedrooms | 3 |
| Bathrooms |
2
|
| Sq Ft | 1,466 |
| Garage | 2 |
Ashton
| Model Name | Ashton |
| Bedrooms | 3 |
| Bathrooms |
2
|
| Sq Ft | 1,466 |
| Garage | 2 |
| Address | 10084 Longtail Drive |
Ashton
| Model Name | Ashton |
| Bedrooms | 3 |
| Bathrooms |
2
|
| Sq Ft | 1,466 |
| Garage | 2 |
| Address | 10080 Longtail Drive |
Ashton
| Model Name | Ashton |
| Bedrooms | 3 |
| Bathrooms |
2
|
| Sq Ft | 1,466 |
| Garage | 2 |
| Address | 10076 Longtail Drive |
Ashton
| Model Name | Ashton |
| Bedrooms | 3 |
| Bathrooms |
2
|
| Sq Ft | 1,466 |
| Garage | 2 |
| Address | 10100 Longtail Drive |
Adams Ridge - Block
12 , Lot
8
Lot Information
| Availability |
Sold
|
| Block |
12
|
| Lot Number |
8
|
Adams Ridge - Block
13 , Lot
2
Lot Information
| Availability |
Sold
|
| Block |
13
|
| Lot Number |
2
|
Adams Ridge - Block
13 , Lot
3
Lot Information
| Availability |
Sold
|
| Block |
13
|
| Lot Number |
3
|
Ashton
| Model Name | Ashton |
| Bedrooms | 3 |
| Bathrooms |
2
|
| Sq Ft | 1,466 |
| Garage | 2 |
Ashton
| Model Name | Ashton |
| Bedrooms | 3 |
| Bathrooms |
2
|
| Sq Ft | 1,466 |
| Garage | 2 |
| Address | 10084 Longtail Drive |
Ashton
| Model Name | Ashton |
| Bedrooms | 3 |
| Bathrooms |
2
|
| Sq Ft | 1,466 |
| Garage | 2 |
| Address | 10080 Longtail Drive |
Ashton
| Model Name | Ashton |
| Bedrooms | 3 |
| Bathrooms |
2
|
| Sq Ft | 1,466 |
| Garage | 2 |
| Address | 10076 Longtail Drive |
Ashton
| Model Name | Ashton |
| Bedrooms | 3 |
| Bathrooms |
2
|
| Sq Ft | 1,466 |
| Garage | 2 |
| Address | 10100 Longtail Drive |
Adams Ridge - Block
13 , Lot
4
Lot Information
| Availability |
Sold
|
| Block |
13
|
| Lot Number |
4
|
Adams Ridge - Block
13 , Lot
5
Lot Information
| Availability |
Sold
|
| Block |
13
|
| Lot Number |
5
|
Evergreen
| Model Name | Evergreen |
| Bedrooms | 3 |
| Bathrooms |
2 - 3
|
| Sq Ft | 1,666 |
| Garage | 2 |
Evergreen
| Model Name | Evergreen |
| Bedrooms | 3 |
| Bathrooms |
2
|
| Sq Ft | 1,666 |
| Garage | 2 |
| Address | 10088 Longtail Drive |
Evergreen
| Model Name | Evergreen |
| Bedrooms | 3 |
| Bathrooms |
3
|
| Sq Ft | 1,666 |
| Garage | 2 |
| Address | 10114 Longtail Drive |
Adams Ridge - Block
13 , Lot
6
Lot Information
| Availability |
Sold
|
| Block |
13
|
| Lot Number |
6
|
Adams Ridge - Block
13 , Lot
7
Lot Information
| Availability |
Sold
|
| Block |
13
|
| Lot Number |
7
|
Everest
| Model Name | Everest |
| Bedrooms | 3 - 4 |
| Bathrooms |
2.5
|
| Sq Ft | 1,700 |
| Garage | 2 |
Everest
| Model Name | Everest |
| Bedrooms | 4 |
| Bathrooms |
2
|
| Sq Ft | 1,700 |
| Garage | 2 |
| Address | 10092 Longtail Drive |
Everest
| Model Name | Everest |
| Bedrooms | 4 |
| Bathrooms |
2
|
| Sq Ft | 1,700 |
| Garage | 2 |
| Address | 10104 Longtail Drive |
Adams Ridge - Block
13 , Lot
8
Lot Information
| Availability |
Sold
|
| Block |
13
|
| Lot Number |
8
|
Adams Ridge - Block
13 , Lot
9
Lot Information
| Availability |
Sold
|
| Block |
13
|
| Lot Number |
9
|
Everest
| Model Name | Everest |
| Bedrooms | 3 - 4 |
| Bathrooms |
2.5
|
| Sq Ft | 1,700 |
| Garage | 2 |
Everest
| Model Name | Everest |
| Bedrooms | 4 |
| Bathrooms |
2
|
| Sq Ft | 1,700 |
| Garage | 2 |
| Address | 10092 Longtail Drive |
Everest
| Model Name | Everest |
| Bedrooms | 4 |
| Bathrooms |
2
|
| Sq Ft | 1,700 |
| Garage | 2 |
| Address | 10104 Longtail Drive |
Adams Ridge - Block
13 , Lot
10
Lot Information
| Availability |
Sold
|
| Block |
13
|
| Lot Number |
10
|
Ashton
| Model Name | Ashton |
| Bedrooms | 3 |
| Bathrooms |
2
|
| Sq Ft | 1,466 |
| Garage | 2 |
Ashton
| Model Name | Ashton |
| Bedrooms | 3 |
| Bathrooms |
2
|
| Sq Ft | 1,466 |
| Garage | 2 |
| Address | 10084 Longtail Drive |
Ashton
| Model Name | Ashton |
| Bedrooms | 3 |
| Bathrooms |
2
|
| Sq Ft | 1,466 |
| Garage | 2 |
| Address | 10080 Longtail Drive |
Ashton
| Model Name | Ashton |
| Bedrooms | 3 |
| Bathrooms |
2
|
| Sq Ft | 1,466 |
| Garage | 2 |
| Address | 10076 Longtail Drive |
Ashton
| Model Name | Ashton |
| Bedrooms | 3 |
| Bathrooms |
2
|
| Sq Ft | 1,466 |
| Garage | 2 |
| Address | 10100 Longtail Drive |
Adams Ridge - Block
13 , Lot
11
Lot Information
| Availability |
Sold
|
| Block |
13
|
| Lot Number |
11
|
Birch
| Model Name | Birch |
| Bedrooms | 3 |
| Bathrooms |
2
|
| Sq Ft | 1,620 |
| Garage | 2 |
Adams Ridge - Block
13 , Lot
12
Lot Information
| Availability |
Sold
|
| Block |
13
|
| Lot Number |
12
|
Adams Ridge - Block
13 , Lot
13
Lot Information
| Availability |
Sold
|
| Block |
13
|
| Lot Number |
13
|
Adams Ridge - Block
13 , Lot
14
Lot Information
| Availability |
Sold
|
| Block |
13
|
| Lot Number |
14
|
Adams Ridge - Block
13 , Lot
20
Lot Information
| Availability |
Sold
|
| Block |
13
|
| Lot Number |
20
|
Adams Ridge - Block
13 , Lot
21
Lot Information
| Availability |
Sold
|
| Block |
13
|
| Lot Number |
21
|
Adams Ridge - Block
13 , Lot
22
Lot Information
| Availability |
Sold
|
| Block |
13
|
| Lot Number |
22
|
Adams Ridge - Block
13 , Lot
23
Lot Information
| Availability |
Sold
|
| Block |
13
|
| Lot Number |
23
|
Ashton
| Model Name | Ashton |
| Bedrooms | 3 |
| Bathrooms |
2
|
| Sq Ft | 1,466 |
| Garage | 2 |
Ashton
| Model Name | Ashton |
| Bedrooms | 3 |
| Bathrooms |
2
|
| Sq Ft | 1,466 |
| Garage | 2 |
| Address | 10084 Longtail Drive |
Ashton
| Model Name | Ashton |
| Bedrooms | 3 |
| Bathrooms |
2
|
| Sq Ft | 1,466 |
| Garage | 2 |
| Address | 10080 Longtail Drive |
Ashton
| Model Name | Ashton |
| Bedrooms | 3 |
| Bathrooms |
2
|
| Sq Ft | 1,466 |
| Garage | 2 |
| Address | 10076 Longtail Drive |
Ashton
| Model Name | Ashton |
| Bedrooms | 3 |
| Bathrooms |
2
|
| Sq Ft | 1,466 |
| Garage | 2 |
| Address | 10100 Longtail Drive |
Adams Ridge - Block
13 , Lot
24
Lot Information
| Availability |
Sold
|
| Block |
13
|
| Lot Number |
24
|
Topaz
| Model Name | Topaz |
| Bedrooms | 4 - 5 |
| Bathrooms |
3.5
|
| Sq Ft | 3,064 |
| Garage | 3 |
Adams Ridge - Block
13 , Lot
25
Lot Information
| Availability |
Sold
|
| Block |
13
|
| Lot Number |
25
|
Adams Ridge - Block
13 , Lot
26
Lot Information
| Availability |
Sold
|
| Block |
13
|
| Lot Number |
26
|
Everest
| Model Name | Everest |
| Bedrooms | 3 - 4 |
| Bathrooms |
2.5
|
| Sq Ft | 1,700 |
| Garage | 2 |
Everest
| Model Name | Everest |
| Bedrooms | 4 |
| Bathrooms |
2
|
| Sq Ft | 1,700 |
| Garage | 2 |
| Address | 10092 Longtail Drive |
Everest
| Model Name | Everest |
| Bedrooms | 4 |
| Bathrooms |
2
|
| Sq Ft | 1,700 |
| Garage | 2 |
| Address | 10104 Longtail Drive |
Adams Ridge - Block
13 , Lot
27
Lot Information
| Availability |
Sold
|
| Block |
13
|
| Lot Number |
27
|
Everest
| Model Name | Everest |
| Bedrooms | 3 - 4 |
| Bathrooms |
2.5
|
| Sq Ft | 1,700 |
| Garage | 2 |
Everest
| Model Name | Everest |
| Bedrooms | 4 |
| Bathrooms |
2
|
| Sq Ft | 1,700 |
| Garage | 2 |
| Address | 10092 Longtail Drive |
Everest
| Model Name | Everest |
| Bedrooms | 4 |
| Bathrooms |
2
|
| Sq Ft | 1,700 |
| Garage | 2 |
| Address | 10104 Longtail Drive |
Adams Ridge - Block
13 , Lot
28
Lot Information
| Availability |
Sold
|
| Block |
13
|
| Lot Number |
28
|
Evergreen
| Model Name | Evergreen |
| Bedrooms | 3 |
| Bathrooms |
2 - 3
|
| Sq Ft | 1,666 |
| Garage | 2 |
Evergreen
| Model Name | Evergreen |
| Bedrooms | 3 |
| Bathrooms |
2
|
| Sq Ft | 1,666 |
| Garage | 2 |
| Address | 10088 Longtail Drive |
Evergreen
| Model Name | Evergreen |
| Bedrooms | 3 |
| Bathrooms |
3
|
| Sq Ft | 1,666 |
| Garage | 2 |
| Address | 10114 Longtail Drive |
Adams Ridge - Block
13 , Lot
29
Lot Information
| Availability |
Sold
|
| Block |
13
|
| Lot Number |
29
|
Ashton
| Model Name | Ashton |
| Bedrooms | 3 |
| Bathrooms |
2
|
| Sq Ft | 1,466 |
| Garage | 2 |
Ashton
| Model Name | Ashton |
| Bedrooms | 3 |
| Bathrooms |
2
|
| Sq Ft | 1,466 |
| Garage | 2 |
| Address | 10084 Longtail Drive |
Ashton
| Model Name | Ashton |
| Bedrooms | 3 |
| Bathrooms |
2
|
| Sq Ft | 1,466 |
| Garage | 2 |
| Address | 10080 Longtail Drive |
Ashton
| Model Name | Ashton |
| Bedrooms | 3 |
| Bathrooms |
2
|
| Sq Ft | 1,466 |
| Garage | 2 |
| Address | 10076 Longtail Drive |
Ashton
| Model Name | Ashton |
| Bedrooms | 3 |
| Bathrooms |
2
|
| Sq Ft | 1,466 |
| Garage | 2 |
| Address | 10100 Longtail Drive |
Adams Ridge - Block
13 , Lot
30
Lot Information
| Availability |
Sold
|
| Block |
13
|
| Lot Number |
30
|
Everest
| Model Name | Everest |
| Bedrooms | 3 - 4 |
| Bathrooms |
2.5
|
| Sq Ft | 1,700 |
| Garage | 2 |
Everest
| Model Name | Everest |
| Bedrooms | 4 |
| Bathrooms |
2
|
| Sq Ft | 1,700 |
| Garage | 2 |
| Address | 10092 Longtail Drive |
Everest
| Model Name | Everest |
| Bedrooms | 4 |
| Bathrooms |
2
|
| Sq Ft | 1,700 |
| Garage | 2 |
| Address | 10104 Longtail Drive |
Adams Ridge - Block
13 , Lot
31
Lot Information
| Availability |
Sold
|
| Block |
13
|
| Lot Number |
31
|
Adams Ridge - Block
13 , Lot
32
Lot Information
| Availability |
Sold
|
| Block |
13
|
| Lot Number |
32
|
Adams Ridge - Block
13 , Lot
33
Lot Information
| Availability |
Sold
|
| Block |
13
|
| Lot Number |
33
|
Adams Ridge - Block
13 , Lot
34
Lot Information
| Availability |
Sold
|
| Block |
13
|
| Lot Number |
34
|
Adams Ridge - Block
13 , Lot
35
Lot Information
| Availability |
Sold
|
| Block |
13
|
| Lot Number |
35
|
Adams Ridge - Block
13 , Lot
36
Lot Information
| Availability |
Sold
|
| Block |
13
|
| Lot Number |
36
|
Adams Ridge - Block
13 , Lot
37
Lot Information
| Availability |
Sold
|
| Block |
13
|
| Lot Number |
37
|
Ashton
| Model Name | Ashton |
| Bedrooms | 3 |
| Bathrooms |
2
|
| Sq Ft | 1,466 |
| Garage | 2 |
Ashton
| Model Name | Ashton |
| Bedrooms | 3 |
| Bathrooms |
2
|
| Sq Ft | 1,466 |
| Garage | 2 |
| Address | 10084 Longtail Drive |
Ashton
| Model Name | Ashton |
| Bedrooms | 3 |
| Bathrooms |
2
|
| Sq Ft | 1,466 |
| Garage | 2 |
| Address | 10080 Longtail Drive |
Ashton
| Model Name | Ashton |
| Bedrooms | 3 |
| Bathrooms |
2
|
| Sq Ft | 1,466 |
| Garage | 2 |
| Address | 10076 Longtail Drive |
Ashton
| Model Name | Ashton |
| Bedrooms | 3 |
| Bathrooms |
2
|
| Sq Ft | 1,466 |
| Garage | 2 |
| Address | 10100 Longtail Drive |
Adams Ridge - Block
13 , Lot
38
Lot Information
| Availability |
Sold
|
| Block |
13
|
| Lot Number |
38
|
Adams Ridge - Block
13 , Lot
39
Lot Information
| Availability |
Sold
|
| Block |
13
|
| Lot Number |
39
|
Adams Ridge - Block
14 , Lot
2
Lot Information
| Availability |
Sold
|
| Block |
14
|
| Lot Number |
2
|
Everest
| Model Name | Everest |
| Bedrooms | 3 - 4 |
| Bathrooms |
2.5
|
| Sq Ft | 1,700 |
| Garage | 2 |
Everest
| Model Name | Everest |
| Bedrooms | 4 |
| Bathrooms |
2
|
| Sq Ft | 1,700 |
| Garage | 2 |
| Address | 10092 Longtail Drive |
Everest
| Model Name | Everest |
| Bedrooms | 4 |
| Bathrooms |
2
|
| Sq Ft | 1,700 |
| Garage | 2 |
| Address | 10104 Longtail Drive |
Adams Ridge - Block
14 , Lot
3
Lot Information
| Availability |
Sold
|
| Block |
14
|
| Lot Number |
3
|
Ashton
| Model Name | Ashton |
| Bedrooms | 3 |
| Bathrooms |
2
|
| Sq Ft | 1,466 |
| Garage | 2 |
Ashton
| Model Name | Ashton |
| Bedrooms | 3 |
| Bathrooms |
2
|
| Sq Ft | 1,466 |
| Garage | 2 |
| Address | 10084 Longtail Drive |
Ashton
| Model Name | Ashton |
| Bedrooms | 3 |
| Bathrooms |
2
|
| Sq Ft | 1,466 |
| Garage | 2 |
| Address | 10080 Longtail Drive |
Ashton
| Model Name | Ashton |
| Bedrooms | 3 |
| Bathrooms |
2
|
| Sq Ft | 1,466 |
| Garage | 2 |
| Address | 10076 Longtail Drive |
Ashton
| Model Name | Ashton |
| Bedrooms | 3 |
| Bathrooms |
2
|
| Sq Ft | 1,466 |
| Garage | 2 |
| Address | 10100 Longtail Drive |
Adams Ridge - Block
14 , Lot
4
Lot Information
| Availability |
Sold
|
| Block |
14
|
| Lot Number |
4
|
Ashton
| Model Name | Ashton |
| Bedrooms | 3 |
| Bathrooms |
2
|
| Sq Ft | 1,466 |
| Garage | 2 |
Ashton
| Model Name | Ashton |
| Bedrooms | 3 |
| Bathrooms |
2
|
| Sq Ft | 1,466 |
| Garage | 2 |
| Address | 10084 Longtail Drive |
Ashton
| Model Name | Ashton |
| Bedrooms | 3 |
| Bathrooms |
2
|
| Sq Ft | 1,466 |
| Garage | 2 |
| Address | 10080 Longtail Drive |
Ashton
| Model Name | Ashton |
| Bedrooms | 3 |
| Bathrooms |
2
|
| Sq Ft | 1,466 |
| Garage | 2 |
| Address | 10076 Longtail Drive |
Ashton
| Model Name | Ashton |
| Bedrooms | 3 |
| Bathrooms |
2
|
| Sq Ft | 1,466 |
| Garage | 2 |
| Address | 10100 Longtail Drive |
Adams Ridge - Block
14 , Lot
5
Lot Information
| Availability |
Sold
|
| Block |
14
|
| Lot Number |
5
|
Ashton
| Model Name | Ashton |
| Bedrooms | 3 |
| Bathrooms |
2
|
| Sq Ft | 1,466 |
| Garage | 2 |
Ashton
| Model Name | Ashton |
| Bedrooms | 3 |
| Bathrooms |
2
|
| Sq Ft | 1,466 |
| Garage | 2 |
| Address | 10084 Longtail Drive |
Ashton
| Model Name | Ashton |
| Bedrooms | 3 |
| Bathrooms |
2
|
| Sq Ft | 1,466 |
| Garage | 2 |
| Address | 10080 Longtail Drive |
Ashton
| Model Name | Ashton |
| Bedrooms | 3 |
| Bathrooms |
2
|
| Sq Ft | 1,466 |
| Garage | 2 |
| Address | 10076 Longtail Drive |
Ashton
| Model Name | Ashton |
| Bedrooms | 3 |
| Bathrooms |
2
|
| Sq Ft | 1,466 |
| Garage | 2 |
| Address | 10100 Longtail Drive |
Adams Ridge - Block
14 , Lot
6
Lot Information
| Availability |
Sold
|
| Block |
14
|
| Lot Number |
6
|
Ashton
| Model Name | Ashton |
| Bedrooms | 3 |
| Bathrooms |
2
|
| Sq Ft | 1,466 |
| Garage | 2 |
Ashton
| Model Name | Ashton |
| Bedrooms | 3 |
| Bathrooms |
2
|
| Sq Ft | 1,466 |
| Garage | 2 |
| Address | 10084 Longtail Drive |
Ashton
| Model Name | Ashton |
| Bedrooms | 3 |
| Bathrooms |
2
|
| Sq Ft | 1,466 |
| Garage | 2 |
| Address | 10080 Longtail Drive |
Ashton
| Model Name | Ashton |
| Bedrooms | 3 |
| Bathrooms |
2
|
| Sq Ft | 1,466 |
| Garage | 2 |
| Address | 10076 Longtail Drive |
Ashton
| Model Name | Ashton |
| Bedrooms | 3 |
| Bathrooms |
2
|
| Sq Ft | 1,466 |
| Garage | 2 |
| Address | 10100 Longtail Drive |
Adams Ridge - Block
14 , Lot
7
Lot Information
| Availability |
Sold
|
| Block |
14
|
| Lot Number |
7
|
Adams Ridge - Block
14 , Lot
8
Lot Information
| Availability |
Sold
|
| Block |
14
|
| Lot Number |
8
|
Ashton
| Model Name | Ashton |
| Bedrooms | 3 |
| Bathrooms |
2
|
| Sq Ft | 1,466 |
| Garage | 2 |
Ashton
| Model Name | Ashton |
| Bedrooms | 3 |
| Bathrooms |
2
|
| Sq Ft | 1,466 |
| Garage | 2 |
| Address | 10084 Longtail Drive |
Ashton
| Model Name | Ashton |
| Bedrooms | 3 |
| Bathrooms |
2
|
| Sq Ft | 1,466 |
| Garage | 2 |
| Address | 10080 Longtail Drive |
Ashton
| Model Name | Ashton |
| Bedrooms | 3 |
| Bathrooms |
2
|
| Sq Ft | 1,466 |
| Garage | 2 |
| Address | 10076 Longtail Drive |
Ashton
| Model Name | Ashton |
| Bedrooms | 3 |
| Bathrooms |
2
|
| Sq Ft | 1,466 |
| Garage | 2 |
| Address | 10100 Longtail Drive |
Adams Ridge - Block
14 , Lot
9
Lot Information
| Availability |
Sold
|
| Block |
14
|
| Lot Number |
9
|
Ashton
| Model Name | Ashton |
| Bedrooms | 3 |
| Bathrooms |
2
|
| Sq Ft | 1,466 |
| Garage | 2 |
Ashton
| Model Name | Ashton |
| Bedrooms | 3 |
| Bathrooms |
2
|
| Sq Ft | 1,466 |
| Garage | 2 |
| Address | 10084 Longtail Drive |
Ashton
| Model Name | Ashton |
| Bedrooms | 3 |
| Bathrooms |
2
|
| Sq Ft | 1,466 |
| Garage | 2 |
| Address | 10080 Longtail Drive |
Ashton
| Model Name | Ashton |
| Bedrooms | 3 |
| Bathrooms |
2
|
| Sq Ft | 1,466 |
| Garage | 2 |
| Address | 10076 Longtail Drive |
Ashton
| Model Name | Ashton |
| Bedrooms | 3 |
| Bathrooms |
2
|
| Sq Ft | 1,466 |
| Garage | 2 |
| Address | 10100 Longtail Drive |
Adams Ridge - Block
14 , Lot
10
Lot Information
| Availability |
Sold
|
| Block |
14
|
| Lot Number |
10
|
Ashton
| Model Name | Ashton |
| Bedrooms | 3 |
| Bathrooms |
2
|
| Sq Ft | 1,466 |
| Garage | 2 |
Ashton
| Model Name | Ashton |
| Bedrooms | 3 |
| Bathrooms |
2
|
| Sq Ft | 1,466 |
| Garage | 2 |
| Address | 10084 Longtail Drive |
Ashton
| Model Name | Ashton |
| Bedrooms | 3 |
| Bathrooms |
2
|
| Sq Ft | 1,466 |
| Garage | 2 |
| Address | 10080 Longtail Drive |
Ashton
| Model Name | Ashton |
| Bedrooms | 3 |
| Bathrooms |
2
|
| Sq Ft | 1,466 |
| Garage | 2 |
| Address | 10076 Longtail Drive |
Ashton
| Model Name | Ashton |
| Bedrooms | 3 |
| Bathrooms |
2
|
| Sq Ft | 1,466 |
| Garage | 2 |
| Address | 10100 Longtail Drive |
Adams Ridge - Block
14 , Lot
11
Lot Information
| Availability |
Sold
|
| Block |
14
|
| Lot Number |
11
|
Topaz
| Model Name | Topaz |
| Bedrooms | 4 - 5 |
| Bathrooms |
3.5
|
| Sq Ft | 3,064 |
| Garage | 3 |
Adams Ridge - Block
14 , Lot
12
Lot Information
| Availability |
Sold
|
| Block |
14
|
| Lot Number |
12
|
Brooke
| Model Name | Brooke |
| Bedrooms | 3 - 5 |
| Bathrooms |
2 - 3
|
| Sq Ft | 2,286 |
| Garage | 2 |
Adams Ridge - Block
14 , Lot
13
Lot Information
| Availability |
Sold
|
| Block |
14
|
| Lot Number |
13
|
Adams Ridge - Block
14 , Lot
14
Lot Information
| Availability |
Sold
|
| Block |
14
|
| Lot Number |
14
|
Everest
| Model Name | Everest |
| Bedrooms | 3 - 4 |
| Bathrooms |
2.5
|
| Sq Ft | 1,700 |
| Garage | 2 |
Everest
| Model Name | Everest |
| Bedrooms | 4 |
| Bathrooms |
2
|
| Sq Ft | 1,700 |
| Garage | 2 |
| Address | 10092 Longtail Drive |
Everest
| Model Name | Everest |
| Bedrooms | 4 |
| Bathrooms |
2
|
| Sq Ft | 1,700 |
| Garage | 2 |
| Address | 10104 Longtail Drive |
Adams Ridge - Block
14 , Lot
15
Lot Information
| Availability |
Sold
|
| Block |
14
|
| Lot Number |
15
|
Ashton
| Model Name | Ashton |
| Bedrooms | 3 |
| Bathrooms |
2
|
| Sq Ft | 1,466 |
| Garage | 2 |
Ashton
| Model Name | Ashton |
| Bedrooms | 3 |
| Bathrooms |
2
|
| Sq Ft | 1,466 |
| Garage | 2 |
| Address | 10084 Longtail Drive |
Ashton
| Model Name | Ashton |
| Bedrooms | 3 |
| Bathrooms |
2
|
| Sq Ft | 1,466 |
| Garage | 2 |
| Address | 10080 Longtail Drive |
Ashton
| Model Name | Ashton |
| Bedrooms | 3 |
| Bathrooms |
2
|
| Sq Ft | 1,466 |
| Garage | 2 |
| Address | 10076 Longtail Drive |
Ashton
| Model Name | Ashton |
| Bedrooms | 3 |
| Bathrooms |
2
|
| Sq Ft | 1,466 |
| Garage | 2 |
| Address | 10100 Longtail Drive |
Adams Ridge - Block
14 , Lot
16
Lot Information
| Availability |
Sold
|
| Block |
14
|
| Lot Number |
16
|
Evergreen
| Model Name | Evergreen |
| Bedrooms | 3 |
| Bathrooms |
2 - 3
|
| Sq Ft | 1,666 |
| Garage | 2 |
Evergreen
| Model Name | Evergreen |
| Bedrooms | 3 |
| Bathrooms |
2
|
| Sq Ft | 1,666 |
| Garage | 2 |
| Address | 10088 Longtail Drive |
Evergreen
| Model Name | Evergreen |
| Bedrooms | 3 |
| Bathrooms |
3
|
| Sq Ft | 1,666 |
| Garage | 2 |
| Address | 10114 Longtail Drive |
Adams Ridge - Block
14 , Lot
17
Lot Information
| Availability |
Sold
|
| Block |
14
|
| Lot Number |
17
|
Adams Ridge - Block
14 , Lot
18
Lot Information
| Availability |
Sold
|
| Block |
14
|
| Lot Number |
18
|
Cypress
| Model Name | Cypress |
| Bedrooms | 3 - 5 |
| Bathrooms |
2.5 - 3
|
| Sq Ft | 2,412 |
| Garage | 2 |
Adams Ridge - Block
14 , Lot
19
Lot Information
| Availability |
Sold
|
| Block |
14
|
| Lot Number |
19
|
Alturas
| Model Name | Alturas |
| Bedrooms | 3 |
| Bathrooms |
2
|
| Sq Ft | 1,446 |
| Garage | 2 |
Alturas
| Model Name | Alturas |
| Bedrooms | 3 |
| Bathrooms |
2
|
| Sq Ft | 1,446 |
| Garage | 2 |
| Address | 17543 Colter Ridge Ave |
Adams Ridge - Block
14 , Lot
20
Lot Information
| Availability |
Sold
|
| Block |
14
|
| Lot Number |
20
|
Ashton
| Model Name | Ashton |
| Bedrooms | 3 |
| Bathrooms |
2
|
| Sq Ft | 1,466 |
| Garage | 2 |
Ashton
| Model Name | Ashton |
| Bedrooms | 3 |
| Bathrooms |
2
|
| Sq Ft | 1,466 |
| Garage | 2 |
| Address | 10084 Longtail Drive |
Ashton
| Model Name | Ashton |
| Bedrooms | 3 |
| Bathrooms |
2
|
| Sq Ft | 1,466 |
| Garage | 2 |
| Address | 10080 Longtail Drive |
Ashton
| Model Name | Ashton |
| Bedrooms | 3 |
| Bathrooms |
2
|
| Sq Ft | 1,466 |
| Garage | 2 |
| Address | 10076 Longtail Drive |
Ashton
| Model Name | Ashton |
| Bedrooms | 3 |
| Bathrooms |
2
|
| Sq Ft | 1,466 |
| Garage | 2 |
| Address | 10100 Longtail Drive |
Adams Ridge - Block
14 , Lot
21
Lot Information
| Availability |
Sold
|
| Block |
14
|
| Lot Number |
21
|
Adams Ridge - Block
14 , Lot
22
Lot Information
| Availability |
Sold
|
| Block |
14
|
| Lot Number |
22
|
Ashton
| Model Name | Ashton |
| Bedrooms | 3 |
| Bathrooms |
2
|
| Sq Ft | 1,466 |
| Garage | 2 |
Ashton
| Model Name | Ashton |
| Bedrooms | 3 |
| Bathrooms |
2
|
| Sq Ft | 1,466 |
| Garage | 2 |
| Address | 10084 Longtail Drive |
Ashton
| Model Name | Ashton |
| Bedrooms | 3 |
| Bathrooms |
2
|
| Sq Ft | 1,466 |
| Garage | 2 |
| Address | 10080 Longtail Drive |
Ashton
| Model Name | Ashton |
| Bedrooms | 3 |
| Bathrooms |
2
|
| Sq Ft | 1,466 |
| Garage | 2 |
| Address | 10076 Longtail Drive |
Ashton
| Model Name | Ashton |
| Bedrooms | 3 |
| Bathrooms |
2
|
| Sq Ft | 1,466 |
| Garage | 2 |
| Address | 10100 Longtail Drive |
Adams Ridge - Block
14 , Lot
24
Lot Information
| Availability |
Under Contract
|
| Block |
14
|
| Lot Number |
24
|
Ashton
| Model Name | Ashton |
| Bedrooms | 3 |
| Bathrooms |
2
|
| Sq Ft | 1,466 |
| Garage | 2 |
| Price | $ 353,990 |
Ashton
| Model Name | Ashton |
| Bedrooms | 3 |
| Bathrooms |
2
|
| Sq Ft | 1,466 |
| Garage | 2 |
| Price | $ 358,990 |
| Address | 10084 Longtail Drive |
Ashton
| Model Name | Ashton |
| Bedrooms | 3 |
| Bathrooms |
2
|
| Sq Ft | 1,466 |
| Garage | 2 |
| Price | $ 355,990 |
| Address | 10080 Longtail Drive |
Ashton
| Model Name | Ashton |
| Bedrooms | 3 |
| Bathrooms |
2
|
| Sq Ft | 1,466 |
| Garage | 2 |
| Price | $ 358,990 |
| Address | 10076 Longtail Drive |
Ashton
| Model Name | Ashton |
| Bedrooms | 3 |
| Bathrooms |
2
|
| Sq Ft | 1,466 |
| Garage | 2 |
| Price | $ 395,061 |
| Address | 10100 Longtail Drive |
Adams Ridge - Block
14 , Lot
25
Lot Information
| Availability |
Sold
|
| Block |
14
|
| Lot Number |
25
|
Everest
| Model Name | Everest |
| Bedrooms | 3 - 4 |
| Bathrooms |
2.5
|
| Sq Ft | 1,700 |
| Garage | 2 |
Everest
| Model Name | Everest |
| Bedrooms | 4 |
| Bathrooms |
2
|
| Sq Ft | 1,700 |
| Garage | 2 |
| Address | 10092 Longtail Drive |
Everest
| Model Name | Everest |
| Bedrooms | 4 |
| Bathrooms |
2
|
| Sq Ft | 1,700 |
| Garage | 2 |
| Address | 10104 Longtail Drive |
Adams Ridge - Block
14 , Lot
26
Lot Information
| Availability |
Under Contract
|
| Block |
14
|
| Lot Number |
26
|
Ashton
| Model Name | Ashton |
| Bedrooms | 3 |
| Bathrooms |
2
|
| Sq Ft | 1,466 |
| Garage | 2 |
| Price | $ 353,990 |
Ashton
| Model Name | Ashton |
| Bedrooms | 3 |
| Bathrooms |
2
|
| Sq Ft | 1,466 |
| Garage | 2 |
| Price | $ 358,990 |
| Address | 10084 Longtail Drive |
Ashton
| Model Name | Ashton |
| Bedrooms | 3 |
| Bathrooms |
2
|
| Sq Ft | 1,466 |
| Garage | 2 |
| Price | $ 355,990 |
| Address | 10080 Longtail Drive |
Ashton
| Model Name | Ashton |
| Bedrooms | 3 |
| Bathrooms |
2
|
| Sq Ft | 1,466 |
| Garage | 2 |
| Price | $ 358,990 |
| Address | 10076 Longtail Drive |
Ashton
| Model Name | Ashton |
| Bedrooms | 3 |
| Bathrooms |
2
|
| Sq Ft | 1,466 |
| Garage | 2 |
| Price | $ 395,061 |
| Address | 10100 Longtail Drive |
Adams Ridge - Block
14 , Lot
27
Lot Information
| Availability |
Sold
|
| Block |
14
|
| Lot Number |
27
|
Ashton
| Model Name | Ashton |
| Bedrooms | 3 |
| Bathrooms |
2
|
| Sq Ft | 1,466 |
| Garage | 2 |
Ashton
| Model Name | Ashton |
| Bedrooms | 3 |
| Bathrooms |
2
|
| Sq Ft | 1,466 |
| Garage | 2 |
| Address | 10084 Longtail Drive |
Ashton
| Model Name | Ashton |
| Bedrooms | 3 |
| Bathrooms |
2
|
| Sq Ft | 1,466 |
| Garage | 2 |
| Address | 10080 Longtail Drive |
Ashton
| Model Name | Ashton |
| Bedrooms | 3 |
| Bathrooms |
2
|
| Sq Ft | 1,466 |
| Garage | 2 |
| Address | 10076 Longtail Drive |
Ashton
| Model Name | Ashton |
| Bedrooms | 3 |
| Bathrooms |
2
|
| Sq Ft | 1,466 |
| Garage | 2 |
| Address | 10100 Longtail Drive |
Adams Ridge - Block
14 , Lot
28
Lot Information
| Availability |
Under Contract
|
| Block |
14
|
| Lot Number |
28
|
Ashton
| Model Name | Ashton |
| Bedrooms | 3 |
| Bathrooms |
2
|
| Sq Ft | 1,466 |
| Garage | 2 |
| Price | $ 353,990 |
Ashton
| Model Name | Ashton |
| Bedrooms | 3 |
| Bathrooms |
2
|
| Sq Ft | 1,466 |
| Garage | 2 |
| Price | $ 358,990 |
| Address | 10084 Longtail Drive |
Ashton
| Model Name | Ashton |
| Bedrooms | 3 |
| Bathrooms |
2
|
| Sq Ft | 1,466 |
| Garage | 2 |
| Price | $ 355,990 |
| Address | 10080 Longtail Drive |
Ashton
| Model Name | Ashton |
| Bedrooms | 3 |
| Bathrooms |
2
|
| Sq Ft | 1,466 |
| Garage | 2 |
| Price | $ 358,990 |
| Address | 10076 Longtail Drive |
Ashton
| Model Name | Ashton |
| Bedrooms | 3 |
| Bathrooms |
2
|
| Sq Ft | 1,466 |
| Garage | 2 |
| Price | $ 395,061 |
| Address | 10100 Longtail Drive |
Adams Ridge - Block
14 , Lot
29
Lot Information
| Availability |
Sold
|
| Block |
14
|
| Lot Number |
29
|
Ashton
| Model Name | Ashton |
| Bedrooms | 3 |
| Bathrooms |
2
|
| Sq Ft | 1,466 |
| Garage | 2 |
Ashton
| Model Name | Ashton |
| Bedrooms | 3 |
| Bathrooms |
2
|
| Sq Ft | 1,466 |
| Garage | 2 |
| Address | 10084 Longtail Drive |
Ashton
| Model Name | Ashton |
| Bedrooms | 3 |
| Bathrooms |
2
|
| Sq Ft | 1,466 |
| Garage | 2 |
| Address | 10080 Longtail Drive |
Ashton
| Model Name | Ashton |
| Bedrooms | 3 |
| Bathrooms |
2
|
| Sq Ft | 1,466 |
| Garage | 2 |
| Address | 10076 Longtail Drive |
Ashton
| Model Name | Ashton |
| Bedrooms | 3 |
| Bathrooms |
2
|
| Sq Ft | 1,466 |
| Garage | 2 |
| Address | 10100 Longtail Drive |
Adams Ridge - Block
14 , Lot
31
Lot Information
| Availability |
Under Contract
|
| Block |
14
|
| Lot Number |
31
|
Ashton
| Model Name | Ashton |
| Bedrooms | 3 |
| Bathrooms |
2
|
| Sq Ft | 1,466 |
| Garage | 2 |
| Price | $ 353,990 |
Ashton
| Model Name | Ashton |
| Bedrooms | 3 |
| Bathrooms |
2
|
| Sq Ft | 1,466 |
| Garage | 2 |
| Price | $ 358,990 |
| Address | 10084 Longtail Drive |
Ashton
| Model Name | Ashton |
| Bedrooms | 3 |
| Bathrooms |
2
|
| Sq Ft | 1,466 |
| Garage | 2 |
| Price | $ 355,990 |
| Address | 10080 Longtail Drive |
Ashton
| Model Name | Ashton |
| Bedrooms | 3 |
| Bathrooms |
2
|
| Sq Ft | 1,466 |
| Garage | 2 |
| Price | $ 358,990 |
| Address | 10076 Longtail Drive |
Ashton
| Model Name | Ashton |
| Bedrooms | 3 |
| Bathrooms |
2
|
| Sq Ft | 1,466 |
| Garage | 2 |
| Price | $ 395,061 |
| Address | 10100 Longtail Drive |
Adams Ridge - Block
14 , Lot
32
Lot Information
| Availability |
Under Contract
|
| Block |
14
|
| Lot Number |
32
|
Everest
| Model Name | Everest |
| Bedrooms | 3 - 4 |
| Bathrooms |
2.5
|
| Sq Ft | 1,700 |
| Garage | 2 |
| Price | $ 370,990 |
Everest
| Model Name | Everest |
| Bedrooms | 4 |
| Bathrooms |
2
|
| Sq Ft | 1,700 |
| Garage | 2 |
| Price | $ 413,561 |
| Address | 10092 Longtail Drive |
Everest
| Model Name | Everest |
| Bedrooms | 4 |
| Bathrooms |
2
|
| Sq Ft | 1,700 |
| Garage | 2 |
| Price | $ 426,936 |
| Address | 10104 Longtail Drive |
Adams Ridge - Block
14 , Lot
33
Lot Information
| Availability |
Under Contract
|
| Block |
14
|
| Lot Number |
33
|
Everest
| Model Name | Everest |
| Bedrooms | 3 - 4 |
| Bathrooms |
2.5
|
| Sq Ft | 1,700 |
| Garage | 2 |
| Price | $ 370,990 |
Everest
| Model Name | Everest |
| Bedrooms | 4 |
| Bathrooms |
2
|
| Sq Ft | 1,700 |
| Garage | 2 |
| Price | $ 413,561 |
| Address | 10092 Longtail Drive |
Everest
| Model Name | Everest |
| Bedrooms | 4 |
| Bathrooms |
2
|
| Sq Ft | 1,700 |
| Garage | 2 |
| Price | $ 426,936 |
| Address | 10104 Longtail Drive |
Adams Ridge - Block
14 , Lot
34
Lot Information
| Availability |
Under Contract
|
| Block |
14
|
| Lot Number |
34
|
Ashton
| Model Name | Ashton |
| Bedrooms | 3 |
| Bathrooms |
2
|
| Sq Ft | 1,466 |
| Garage | 2 |
| Price | $ 353,990 |
Ashton
| Model Name | Ashton |
| Bedrooms | 3 |
| Bathrooms |
2
|
| Sq Ft | 1,466 |
| Garage | 2 |
| Price | $ 358,990 |
| Address | 10084 Longtail Drive |
Ashton
| Model Name | Ashton |
| Bedrooms | 3 |
| Bathrooms |
2
|
| Sq Ft | 1,466 |
| Garage | 2 |
| Price | $ 355,990 |
| Address | 10080 Longtail Drive |
Ashton
| Model Name | Ashton |
| Bedrooms | 3 |
| Bathrooms |
2
|
| Sq Ft | 1,466 |
| Garage | 2 |
| Price | $ 358,990 |
| Address | 10076 Longtail Drive |
Ashton
| Model Name | Ashton |
| Bedrooms | 3 |
| Bathrooms |
2
|
| Sq Ft | 1,466 |
| Garage | 2 |
| Price | $ 395,061 |
| Address | 10100 Longtail Drive |
Adams Ridge - Block
14 , Lot
35
Lot Information
| Availability |
Available
|
| Block |
14
|
| Lot Number |
35
|
Ashton
| Model Name | Ashton |
| Bedrooms | 3 |
| Bathrooms |
2
|
| Sq Ft | 1,466 |
| Garage | 2 |
| Price | $ 353,990 |
Ashton
| Model Name | Ashton |
| Bedrooms | 3 |
| Bathrooms |
2
|
| Sq Ft | 1,466 |
| Garage | 2 |
| Price | $ 358,990 |
| Address | 10084 Longtail Drive |
Ashton
| Model Name | Ashton |
| Bedrooms | 3 |
| Bathrooms |
2
|
| Sq Ft | 1,466 |
| Garage | 2 |
| Price | $ 355,990 |
| Address | 10080 Longtail Drive |
Ashton
| Model Name | Ashton |
| Bedrooms | 3 |
| Bathrooms |
2
|
| Sq Ft | 1,466 |
| Garage | 2 |
| Price | $ 358,990 |
| Address | 10076 Longtail Drive |
Ashton
| Model Name | Ashton |
| Bedrooms | 3 |
| Bathrooms |
2
|
| Sq Ft | 1,466 |
| Garage | 2 |
| Price | $ 395,061 |
| Address | 10100 Longtail Drive |
Adams Ridge - Block
14 , Lot
36
Lot Information
| Availability |
Under Contract
|
| Block |
14
|
| Lot Number |
36
|
Yosemite
| Model Name | Yosemite |
| Bedrooms | 4 - 7 |
| Bathrooms |
3.5 - 4
|
| Sq Ft | 3,259 |
| Garage | 2 |
| Price | $ 483,990 |
Adams Ridge - Block
14 , Lot
37
Lot Information
| Availability |
Available
|
| Block |
14
|
| Lot Number |
37
|
Adams Ridge - Block
14 , Lot
38
Lot Information
| Availability |
Under Contract
|
| Block |
14
|
| Lot Number |
38
|
Yosemite
| Model Name | Yosemite |
| Bedrooms | 4 - 7 |
| Bathrooms |
3.5 - 4
|
| Sq Ft | 3,259 |
| Garage | 2 |
| Price | $ 483,990 |
Adams Ridge - Block
14 , Lot
39
Lot Information
| Availability |
Under Contract
|
| Block |
14
|
| Lot Number |
39
|
Garnet
| Model Name | Garnet |
| Bedrooms | 4 - 6 |
| Bathrooms |
2.5 - 4
|
| Sq Ft | 2,807 |
| Garage | 2 |
| Price | $ 448,990 |
Adams Ridge - Block
14 , Lot
40
Lot Information
| Availability |
Available
|
| Block |
14
|
| Lot Number |
40
|
Adams Ridge - Block
14 , Lot
41
Lot Information
| Availability |
Under Contract
|
| Block |
14
|
| Lot Number |
41
|
Garnet
| Model Name | Garnet |
| Bedrooms | 4 - 6 |
| Bathrooms |
2.5 - 4
|
| Sq Ft | 2,807 |
| Garage | 2 |
| Price | $ 448,990 |
Adams Ridge - Block
14 , Lot
42
Lot Information
| Availability |
Available
|
| Block |
14
|
| Lot Number |
42
|
Ashton
| Model Name | Ashton |
| Bedrooms | 3 |
| Bathrooms |
2
|
| Sq Ft | 1,466 |
| Garage | 2 |
| Price | $ 353,990 |
Ashton
| Model Name | Ashton |
| Bedrooms | 3 |
| Bathrooms |
2
|
| Sq Ft | 1,466 |
| Garage | 2 |
| Price | $ 358,990 |
| Address | 10084 Longtail Drive |
Ashton
| Model Name | Ashton |
| Bedrooms | 3 |
| Bathrooms |
2
|
| Sq Ft | 1,466 |
| Garage | 2 |
| Price | $ 355,990 |
| Address | 10080 Longtail Drive |
Ashton
| Model Name | Ashton |
| Bedrooms | 3 |
| Bathrooms |
2
|
| Sq Ft | 1,466 |
| Garage | 2 |
| Price | $ 358,990 |
| Address | 10076 Longtail Drive |
Ashton
| Model Name | Ashton |
| Bedrooms | 3 |
| Bathrooms |
2
|
| Sq Ft | 1,466 |
| Garage | 2 |
| Price | $ 395,061 |
| Address | 10100 Longtail Drive |
Adams Ridge - Block
14 , Lot
13
Lot Information
| Availability |
Sold
|
| Block |
14
|
| Lot Number |
13
|
Adams Ridge - Block
14 , Lot
44
Lot Information
| Availability |
Under Contract
|
| Block |
14
|
| Lot Number |
44
|
Everest
| Model Name | Everest |
| Bedrooms | 3 - 4 |
| Bathrooms |
2.5
|
| Sq Ft | 1,700 |
| Garage | 2 |
| Price | $ 370,990 |
Everest
| Model Name | Everest |
| Bedrooms | 4 |
| Bathrooms |
2
|
| Sq Ft | 1,700 |
| Garage | 2 |
| Price | $ 413,561 |
| Address | 10092 Longtail Drive |
Everest
| Model Name | Everest |
| Bedrooms | 4 |
| Bathrooms |
2
|
| Sq Ft | 1,700 |
| Garage | 2 |
| Price | $ 426,936 |
| Address | 10104 Longtail Drive |
Adams Ridge - Block
14 , Lot
45
Lot Information
| Availability |
Available
|
| Block |
14
|
| Lot Number |
45
|
Adams Ridge - Block
14 , Lot
46
Lot Information
| Availability |
Available
|
| Block |
14
|
| Lot Number |
46
|
Adams Ridge - Block
15 , Lot
15
Lot Information
| Availability |
Sold
|
| Block |
15
|
| Lot Number |
15
|
Ashton
| Model Name | Ashton |
| Bedrooms | 3 |
| Bathrooms |
2
|
| Sq Ft | 1,466 |
| Garage | 2 |
Ashton
| Model Name | Ashton |
| Bedrooms | 3 |
| Bathrooms |
2
|
| Sq Ft | 1,466 |
| Garage | 2 |
| Address | 10084 Longtail Drive |
Ashton
| Model Name | Ashton |
| Bedrooms | 3 |
| Bathrooms |
2
|
| Sq Ft | 1,466 |
| Garage | 2 |
| Address | 10080 Longtail Drive |
Ashton
| Model Name | Ashton |
| Bedrooms | 3 |
| Bathrooms |
2
|
| Sq Ft | 1,466 |
| Garage | 2 |
| Address | 10076 Longtail Drive |
Ashton
| Model Name | Ashton |
| Bedrooms | 3 |
| Bathrooms |
2
|
| Sq Ft | 1,466 |
| Garage | 2 |
| Address | 10100 Longtail Drive |
Adams Ridge - Block
15 , Lot
16
Lot Information
| Availability |
Sold
|
| Block |
15
|
| Lot Number |
16
|
Evergreen
| Model Name | Evergreen |
| Bedrooms | 3 |
| Bathrooms |
2 - 3
|
| Sq Ft | 1,666 |
| Garage | 2 |
Evergreen
| Model Name | Evergreen |
| Bedrooms | 3 |
| Bathrooms |
2
|
| Sq Ft | 1,666 |
| Garage | 2 |
| Address | 10088 Longtail Drive |
Evergreen
| Model Name | Evergreen |
| Bedrooms | 3 |
| Bathrooms |
3
|
| Sq Ft | 1,666 |
| Garage | 2 |
| Address | 10114 Longtail Drive |
Adams Ridge - Block
15 , Lot
17
Lot Information
| Availability |
Sold
|
| Block |
15
|
| Lot Number |
17
|
Ashton
| Model Name | Ashton |
| Bedrooms | 3 |
| Bathrooms |
2
|
| Sq Ft | 1,466 |
| Garage | 2 |
Ashton
| Model Name | Ashton |
| Bedrooms | 3 |
| Bathrooms |
2
|
| Sq Ft | 1,466 |
| Garage | 2 |
| Address | 10084 Longtail Drive |
Ashton
| Model Name | Ashton |
| Bedrooms | 3 |
| Bathrooms |
2
|
| Sq Ft | 1,466 |
| Garage | 2 |
| Address | 10080 Longtail Drive |
Ashton
| Model Name | Ashton |
| Bedrooms | 3 |
| Bathrooms |
2
|
| Sq Ft | 1,466 |
| Garage | 2 |
| Address | 10076 Longtail Drive |
Ashton
| Model Name | Ashton |
| Bedrooms | 3 |
| Bathrooms |
2
|
| Sq Ft | 1,466 |
| Garage | 2 |
| Address | 10100 Longtail Drive |
Adams Ridge - Block
15 , Lot
18
Lot Information
| Availability |
Sold
|
| Block |
15
|
| Lot Number |
18
|
Ashton
| Model Name | Ashton |
| Bedrooms | 3 |
| Bathrooms |
2
|
| Sq Ft | 1,466 |
| Garage | 2 |
Ashton
| Model Name | Ashton |
| Bedrooms | 3 |
| Bathrooms |
2
|
| Sq Ft | 1,466 |
| Garage | 2 |
| Address | 10084 Longtail Drive |
Ashton
| Model Name | Ashton |
| Bedrooms | 3 |
| Bathrooms |
2
|
| Sq Ft | 1,466 |
| Garage | 2 |
| Address | 10080 Longtail Drive |
Ashton
| Model Name | Ashton |
| Bedrooms | 3 |
| Bathrooms |
2
|
| Sq Ft | 1,466 |
| Garage | 2 |
| Address | 10076 Longtail Drive |
Ashton
| Model Name | Ashton |
| Bedrooms | 3 |
| Bathrooms |
2
|
| Sq Ft | 1,466 |
| Garage | 2 |
| Address | 10100 Longtail Drive |
Adams Ridge - Block
15 , Lot
19
Lot Information
| Availability |
Sold
|
| Block |
15
|
| Lot Number |
19
|
Everest
| Model Name | Everest |
| Bedrooms | 3 - 4 |
| Bathrooms |
2.5
|
| Sq Ft | 1,700 |
| Garage | 2 |
Everest
| Model Name | Everest |
| Bedrooms | 4 |
| Bathrooms |
2
|
| Sq Ft | 1,700 |
| Garage | 2 |
| Address | 10092 Longtail Drive |
Everest
| Model Name | Everest |
| Bedrooms | 4 |
| Bathrooms |
2
|
| Sq Ft | 1,700 |
| Garage | 2 |
| Address | 10104 Longtail Drive |
Adams Ridge - Block
15 , Lot
20
Lot Information
| Availability |
Sold
|
| Block |
15
|
| Lot Number |
20
|
Everest
| Model Name | Everest |
| Bedrooms | 3 - 4 |
| Bathrooms |
2.5
|
| Sq Ft | 1,700 |
| Garage | 2 |
Everest
| Model Name | Everest |
| Bedrooms | 4 |
| Bathrooms |
2
|
| Sq Ft | 1,700 |
| Garage | 2 |
| Address | 10092 Longtail Drive |
Everest
| Model Name | Everest |
| Bedrooms | 4 |
| Bathrooms |
2
|
| Sq Ft | 1,700 |
| Garage | 2 |
| Address | 10104 Longtail Drive |
Adams Ridge - Block
15 , Lot
21
Lot Information
| Availability |
Sold
|
| Block |
15
|
| Lot Number |
21
|
Adams Ridge - Block
15 , Lot
22
Lot Information
| Availability |
Sold
|
| Block |
15
|
| Lot Number |
22
|
Ashton
| Model Name | Ashton |
| Bedrooms | 3 |
| Bathrooms |
2
|
| Sq Ft | 1,466 |
| Garage | 2 |
Ashton
| Model Name | Ashton |
| Bedrooms | 3 |
| Bathrooms |
2
|
| Sq Ft | 1,466 |
| Garage | 2 |
| Address | 10084 Longtail Drive |
Ashton
| Model Name | Ashton |
| Bedrooms | 3 |
| Bathrooms |
2
|
| Sq Ft | 1,466 |
| Garage | 2 |
| Address | 10080 Longtail Drive |
Ashton
| Model Name | Ashton |
| Bedrooms | 3 |
| Bathrooms |
2
|
| Sq Ft | 1,466 |
| Garage | 2 |
| Address | 10076 Longtail Drive |
Ashton
| Model Name | Ashton |
| Bedrooms | 3 |
| Bathrooms |
2
|
| Sq Ft | 1,466 |
| Garage | 2 |
| Address | 10100 Longtail Drive |
Adams Ridge - Block
15 , Lot
23
Lot Information
| Availability |
Under Contract
|
| Block |
15
|
| Lot Number |
23
|
Adams Ridge - Block
15 , Lot
24
Lot Information
| Availability |
Sold
|
| Block |
15
|
| Lot Number |
24
|
Adams Ridge - Block
15 , Lot
25
Lot Information
| Availability |
Sold
|
| Block |
15
|
| Lot Number |
25
|
Ashton
| Model Name | Ashton |
| Bedrooms | 3 |
| Bathrooms |
2
|
| Sq Ft | 1,466 |
| Garage | 2 |
Ashton
| Model Name | Ashton |
| Bedrooms | 3 |
| Bathrooms |
2
|
| Sq Ft | 1,466 |
| Garage | 2 |
| Address | 10084 Longtail Drive |
Ashton
| Model Name | Ashton |
| Bedrooms | 3 |
| Bathrooms |
2
|
| Sq Ft | 1,466 |
| Garage | 2 |
| Address | 10080 Longtail Drive |
Ashton
| Model Name | Ashton |
| Bedrooms | 3 |
| Bathrooms |
2
|
| Sq Ft | 1,466 |
| Garage | 2 |
| Address | 10076 Longtail Drive |
Ashton
| Model Name | Ashton |
| Bedrooms | 3 |
| Bathrooms |
2
|
| Sq Ft | 1,466 |
| Garage | 2 |
| Address | 10100 Longtail Drive |
Adams Ridge - Block
15 , Lot
26
Lot Information
| Availability |
Sold
|
| Block |
15
|
| Lot Number |
26
|
Adams Ridge - Block
15 , Lot
27
Lot Information
| Availability |
Available
|
| Block |
15
|
| Lot Number |
27
|
Adams Ridge - Block
15 , Lot
28
Lot Information
| Availability |
Available
|
| Block |
15
|
| Lot Number |
28
|
Adams Ridge - Block
15 , Lot
29
Lot Information
| Availability |
Under Contract
|
| Block |
15
|
| Lot Number |
29
|
Adams Ridge - Block
15 , Lot
30
Lot Information
| Availability |
Available
|
| Block |
15
|
| Lot Number |
30
|
Adams Ridge - Block
15 , Lot
31
Lot Information
| Availability |
Available
|
| Block |
15
|
| Lot Number |
31
|
Adams Ridge - Block
15 , Lot
32
Lot Information
| Availability |
Under Contract
|
| Block |
15
|
| Lot Number |
32
|
Ashton
| Model Name | Ashton |
| Bedrooms | 3 |
| Bathrooms |
2
|
| Sq Ft | 1,466 |
| Garage | 2 |
| Price | $ 353,990 |
Ashton
| Model Name | Ashton |
| Bedrooms | 3 |
| Bathrooms |
2
|
| Sq Ft | 1,466 |
| Garage | 2 |
| Price | $ 358,990 |
| Address | 10084 Longtail Drive |
Ashton
| Model Name | Ashton |
| Bedrooms | 3 |
| Bathrooms |
2
|
| Sq Ft | 1,466 |
| Garage | 2 |
| Price | $ 355,990 |
| Address | 10080 Longtail Drive |
Ashton
| Model Name | Ashton |
| Bedrooms | 3 |
| Bathrooms |
2
|
| Sq Ft | 1,466 |
| Garage | 2 |
| Price | $ 358,990 |
| Address | 10076 Longtail Drive |
Ashton
| Model Name | Ashton |
| Bedrooms | 3 |
| Bathrooms |
2
|
| Sq Ft | 1,466 |
| Garage | 2 |
| Price | $ 395,061 |
| Address | 10100 Longtail Drive |
Adams Ridge - Block
15 , Lot
34
Lot Information
| Availability |
Available
|
| Block |
15
|
| Lot Number |
34
|
Birch
| Model Name | Birch |
| Bedrooms | 3 |
| Bathrooms |
2
|
| Sq Ft | 1,620 |
| Garage | 2 |
| Price | $ 381,990 |
Adams Ridge - Block
15 , Lot
35
Lot Information
| Availability |
Available
|
| Block |
15
|
| Lot Number |
35
|
Alturas
| Model Name | Alturas |
| Bedrooms | 3 |
| Bathrooms |
2
|
| Sq Ft | 1,446 |
| Garage | 2 |
| Price | $ 366,990 |
Alturas
| Model Name | Alturas |
| Bedrooms | 3 |
| Bathrooms |
2
|
| Sq Ft | 1,446 |
| Garage | 2 |
| Price | $ 373,990 |
| Address | 17543 Colter Ridge Ave |
Adams Ridge - Block
15 , Lot
36
Lot Information
| Availability |
Available
|
| Block |
15
|
| Lot Number |
36
|
Crestwood
| Model Name | Crestwood |
| Bedrooms | 3 - 4 |
| Bathrooms |
2
|
| Sq Ft | 2,009 |
| Garage | 2 |
| Price | $ 402,990 |
Crestwood
| Model Name | Crestwood |
| Bedrooms | 3 |
| Bathrooms |
2
|
| Sq Ft | 2,009 |
| Garage | 2 |
| Price | $ 447,968 |
| Address | 10436 Bellevue Ridge St |
Adams Ridge - Block
15 , Lot
37
Lot Information
| Availability |
Available
|
| Block |
15
|
| Lot Number |
37
|
Adams Ridge - Block
15 , Lot
38
Lot Information
| Availability |
Under Contract
|
| Block |
15
|
| Lot Number |
38
|
Alturas
| Model Name | Alturas |
| Bedrooms | 3 |
| Bathrooms |
2
|
| Sq Ft | 1,446 |
| Garage | 2 |
| Price | $ 366,990 |
Alturas
| Model Name | Alturas |
| Bedrooms | 3 |
| Bathrooms |
2
|
| Sq Ft | 1,446 |
| Garage | 2 |
| Price | $ 373,990 |
| Address | 17543 Colter Ridge Ave |
Adams Ridge - Block
15 , Lot
39
Lot Information
| Availability |
Available
|
| Block |
15
|
| Lot Number |
39
|
Adams Ridge - Block
15 , Lot
40
Lot Information
| Availability |
Available
|
| Block |
15
|
| Lot Number |
40
|
Adams Ridge - Block
15 , Lot
41
Lot Information
| Availability |
Available
|
| Block |
15
|
| Lot Number |
41
|
Adams Ridge - Block
15 , Lot
42
Lot Information
| Availability |
Available
|
| Block |
15
|
| Lot Number |
42
|
Garnet
| Model Name | Garnet |
| Bedrooms | 4 - 6 |
| Bathrooms |
2.5 - 4
|
| Sq Ft | 2,807 |
| Garage | 2 |
| Price | $ 448,990 |
Adams Ridge - Block
15 , Lot
43
Lot Information
| Availability |
Available
|
| Block |
15
|
| Lot Number |
43
|
Spruce
| Model Name | Spruce |
| Bedrooms | 4 - 7 |
| Bathrooms |
2.5 - 4
|
| Sq Ft | 3,065 |
| Garage | 2 |
| Price | $ 466,990 |
Adams Ridge - Block
15 , Lot
44
Lot Information
| Availability |
Available
|
| Block |
15
|
| Lot Number |
44
|
Yosemite
| Model Name | Yosemite |
| Bedrooms | 4 - 7 |
| Bathrooms |
3.5 - 4
|
| Sq Ft | 3,259 |
| Garage | 2 |
| Price | $ 483,990 |
Adams Ridge - Block
15 , Lot
45
Lot Information
| Availability |
Sold
|
| Block |
15
|
| Lot Number |
45
|
Brooke
| Model Name | Brooke |
| Bedrooms | 3 - 5 |
| Bathrooms |
2 - 3
|
| Sq Ft | 2,286 |
| Garage | 2 |
Adams Ridge - Block
15 , Lot
46
Lot Information
| Availability |
Sold
|
| Block |
15
|
| Lot Number |
46
|
Garnet
| Model Name | Garnet |
| Bedrooms | 4 - 6 |
| Bathrooms |
2.5 - 4
|
| Sq Ft | 2,807 |
| Garage | 2 |
Adams Ridge - Block
6 , Lot
14
Lot Information
| Availability |
Sold
|
| Block |
6
|
| Lot Number |
14
|
Spruce
| Model Name | Spruce |
| Bedrooms | 4 - 7 |
| Bathrooms |
2.5 - 4
|
| Sq Ft | 3,065 |
| Garage | 2 |
Adams Ridge - Block
6 , Lot
15
Lot Information
| Availability |
Sold
|
| Block |
6
|
| Lot Number |
15
|
Alturas
| Model Name | Alturas |
| Bedrooms | 3 |
| Bathrooms |
2
|
| Sq Ft | 1,446 |
| Garage | 2 |
Alturas
| Model Name | Alturas |
| Bedrooms | 3 |
| Bathrooms |
2
|
| Sq Ft | 1,446 |
| Garage | 2 |
| Address | 17543 Colter Ridge Ave |
Adams Ridge - Block
6 , Lot
55
Lot Information
| Availability |
Sold
|
| Block |
6
|
| Lot Number |
55
|
Adams Ridge - Block
6 , Lot
56
Lot Information
| Availability |
Sold
|
| Block |
6
|
| Lot Number |
56
|
Adams Ridge - Block
6 , Lot
57
Lot Information
| Availability |
Sold
|
| Block |
6
|
| Lot Number |
57
|
Adams Ridge - Block
6 , Lot
58
Lot Information
| Availability |
Sold
|
| Block |
6
|
| Lot Number |
58
|
Adams Ridge - Block
6 , Lot
59
Lot Information
| Availability |
Sold
|
| Block |
6
|
| Lot Number |
59
|
Adams Ridge - Block
6 , Lot
67
Lot Information
| Availability |
Sold
|
| Block |
6
|
| Lot Number |
67
|
Adams Ridge - Block
6 , Lot
68
Lot Information
| Availability |
Sold
|
| Block |
6
|
| Lot Number |
68
|
Adams Ridge - Block
6 , Lot
69
Lot Information
| Availability |
Sold
|
| Block |
6
|
| Lot Number |
69
|
Adams Ridge - Block
6 , Lot
70
Lot Information
| Availability |
Sold
|
| Block |
6
|
| Lot Number |
70
|
Adams Ridge - Block
8 , Lot
7
Lot Information
| Availability |
Sold
|
| Block |
8
|
| Lot Number |
7
|
Adams Ridge - Block
8 , Lot
9
Lot Information
| Availability |
Sold
|
| Block |
8
|
| Lot Number |
9
|
Crestwood
| Model Name | Crestwood |
| Bedrooms | 3 - 4 |
| Bathrooms |
2
|
| Sq Ft | 2,009 |
| Garage | 2 |
Crestwood
| Model Name | Crestwood |
| Bedrooms | 3 |
| Bathrooms |
2
|
| Sq Ft | 2,009 |
| Garage | 2 |
| Address | 10436 Bellevue Ridge St |
Adams Ridge - Block
8 , Lot
10
Lot Information
| Availability |
Sold
|
| Block |
8
|
| Lot Number |
10
|
Garnet
| Model Name | Garnet |
| Bedrooms | 4 - 6 |
| Bathrooms |
2.5 - 4
|
| Sq Ft | 2,807 |
| Garage | 2 |
Adams Ridge - Block
8 , Lot
14
Lot Information
| Availability |
Sold
|
| Block |
8
|
| Lot Number |
14
|
Adams Ridge - Block
8 , Lot
15
Lot Information
| Availability |
Sold
|
| Block |
8
|
| Lot Number |
15
|
Birch
| Model Name | Birch |
| Bedrooms | 3 |
| Bathrooms |
2
|
| Sq Ft | 1,620 |
| Garage | 2 |
Adams Ridge - Block
8 , Lot
16
Lot Information
| Availability |
Sold
|
| Block |
8
|
| Lot Number |
16
|
Adams Ridge - Block
8 , Lot
18
Lot Information
| Availability |
Sold
|
| Block |
8
|
| Lot Number |
18
|
Adams Ridge - Block
8 , Lot
19
Lot Information
| Availability |
Sold
|
| Block |
8
|
| Lot Number |
19
|
Ashton
| Model Name | Ashton |
| Bedrooms | 3 |
| Bathrooms |
2
|
| Sq Ft | 1,466 |
| Garage | 2 |
Ashton
| Model Name | Ashton |
| Bedrooms | 3 |
| Bathrooms |
2
|
| Sq Ft | 1,466 |
| Garage | 2 |
| Address | 10084 Longtail Drive |
Ashton
| Model Name | Ashton |
| Bedrooms | 3 |
| Bathrooms |
2
|
| Sq Ft | 1,466 |
| Garage | 2 |
| Address | 10080 Longtail Drive |
Ashton
| Model Name | Ashton |
| Bedrooms | 3 |
| Bathrooms |
2
|
| Sq Ft | 1,466 |
| Garage | 2 |
| Address | 10076 Longtail Drive |
Ashton
| Model Name | Ashton |
| Bedrooms | 3 |
| Bathrooms |
2
|
| Sq Ft | 1,466 |
| Garage | 2 |
| Address | 10100 Longtail Drive |
Adams Ridge - Block
8 , Lot
20
Lot Information
| Availability |
Sold
|
| Block |
8
|
| Lot Number |
20
|
Crestwood
| Model Name | Crestwood |
| Bedrooms | 3 - 4 |
| Bathrooms |
2
|
| Sq Ft | 2,009 |
| Garage | 2 |
Crestwood
| Model Name | Crestwood |
| Bedrooms | 3 |
| Bathrooms |
2
|
| Sq Ft | 2,009 |
| Garage | 2 |
| Address | 10436 Bellevue Ridge St |
Adams Ridge - Block
8 , Lot
21
Lot Information
| Availability |
Sold
|
| Block |
8
|
| Lot Number |
21
|
Adams Ridge - Block
8 , Lot
22
Lot Information
| Availability |
Sold
|
| Block |
8
|
| Lot Number |
22
|
Alturas
| Model Name | Alturas |
| Bedrooms | 3 |
| Bathrooms |
2
|
| Sq Ft | 1,446 |
| Garage | 2 |
Alturas
| Model Name | Alturas |
| Bedrooms | 3 |
| Bathrooms |
2
|
| Sq Ft | 1,446 |
| Garage | 2 |
| Address | 17543 Colter Ridge Ave |
Adams Ridge - Block
8 , Lot
23
Lot Information
| Availability |
Sold
|
| Block |
8
|
| Lot Number |
23
|
Adams Ridge - Block
8 , Lot
25
Lot Information
| Availability |
Sold
|
| Block |
8
|
| Lot Number |
25
|
Adams Ridge - Block
8 , Lot
26
Lot Information
| Availability |
Sold
|
| Block |
8
|
| Lot Number |
26
|
Adams Ridge - Block
8 , Lot
27
Lot Information
| Availability |
Sold
|
| Block |
8
|
| Lot Number |
27
|
Ashton
| Model Name | Ashton |
| Bedrooms | 3 |
| Bathrooms |
2
|
| Sq Ft | 1,466 |
| Garage | 2 |
Ashton
| Model Name | Ashton |
| Bedrooms | 3 |
| Bathrooms |
2
|
| Sq Ft | 1,466 |
| Garage | 2 |
| Address | 10084 Longtail Drive |
Ashton
| Model Name | Ashton |
| Bedrooms | 3 |
| Bathrooms |
2
|
| Sq Ft | 1,466 |
| Garage | 2 |
| Address | 10080 Longtail Drive |
Ashton
| Model Name | Ashton |
| Bedrooms | 3 |
| Bathrooms |
2
|
| Sq Ft | 1,466 |
| Garage | 2 |
| Address | 10076 Longtail Drive |
Ashton
| Model Name | Ashton |
| Bedrooms | 3 |
| Bathrooms |
2
|
| Sq Ft | 1,466 |
| Garage | 2 |
| Address | 10100 Longtail Drive |
Adams Ridge - Block
8 , Lot
28
Lot Information
| Availability |
Sold
|
| Block |
8
|
| Lot Number |
28
|
Ashton
| Model Name | Ashton |
| Bedrooms | 3 |
| Bathrooms |
2
|
| Sq Ft | 1,466 |
| Garage | 2 |
Ashton
| Model Name | Ashton |
| Bedrooms | 3 |
| Bathrooms |
2
|
| Sq Ft | 1,466 |
| Garage | 2 |
| Address | 10084 Longtail Drive |
Ashton
| Model Name | Ashton |
| Bedrooms | 3 |
| Bathrooms |
2
|
| Sq Ft | 1,466 |
| Garage | 2 |
| Address | 10080 Longtail Drive |
Ashton
| Model Name | Ashton |
| Bedrooms | 3 |
| Bathrooms |
2
|
| Sq Ft | 1,466 |
| Garage | 2 |
| Address | 10076 Longtail Drive |
Ashton
| Model Name | Ashton |
| Bedrooms | 3 |
| Bathrooms |
2
|
| Sq Ft | 1,466 |
| Garage | 2 |
| Address | 10100 Longtail Drive |
Adams Ridge - Block
8 , Lot
29
Lot Information
| Availability |
Sold
|
| Block |
8
|
| Lot Number |
29
|
Adams Ridge - Block
8 , Lot
30
Lot Information
| Availability |
Sold
|
| Block |
8
|
| Lot Number |
30
|
Ashton
| Model Name | Ashton |
| Bedrooms | 3 |
| Bathrooms |
2
|
| Sq Ft | 1,466 |
| Garage | 2 |
Ashton
| Model Name | Ashton |
| Bedrooms | 3 |
| Bathrooms |
2
|
| Sq Ft | 1,466 |
| Garage | 2 |
| Address | 10084 Longtail Drive |
Ashton
| Model Name | Ashton |
| Bedrooms | 3 |
| Bathrooms |
2
|
| Sq Ft | 1,466 |
| Garage | 2 |
| Address | 10080 Longtail Drive |
Ashton
| Model Name | Ashton |
| Bedrooms | 3 |
| Bathrooms |
2
|
| Sq Ft | 1,466 |
| Garage | 2 |
| Address | 10076 Longtail Drive |
Ashton
| Model Name | Ashton |
| Bedrooms | 3 |
| Bathrooms |
2
|
| Sq Ft | 1,466 |
| Garage | 2 |
| Address | 10100 Longtail Drive |
Adams Ridge - Block
8 , Lot
31
Lot Information
| Availability |
Sold
|
| Block |
8
|
| Lot Number |
31
|
Ashton
| Model Name | Ashton |
| Bedrooms | 3 |
| Bathrooms |
2
|
| Sq Ft | 1,466 |
| Garage | 2 |
Ashton
| Model Name | Ashton |
| Bedrooms | 3 |
| Bathrooms |
2
|
| Sq Ft | 1,466 |
| Garage | 2 |
| Address | 10084 Longtail Drive |
Ashton
| Model Name | Ashton |
| Bedrooms | 3 |
| Bathrooms |
2
|
| Sq Ft | 1,466 |
| Garage | 2 |
| Address | 10080 Longtail Drive |
Ashton
| Model Name | Ashton |
| Bedrooms | 3 |
| Bathrooms |
2
|
| Sq Ft | 1,466 |
| Garage | 2 |
| Address | 10076 Longtail Drive |
Ashton
| Model Name | Ashton |
| Bedrooms | 3 |
| Bathrooms |
2
|
| Sq Ft | 1,466 |
| Garage | 2 |
| Address | 10100 Longtail Drive |
Adams Ridge - Block
8 , Lot
33
Lot Information
| Availability |
Sold
|
| Block |
8
|
| Lot Number |
33
|
Ashton
| Model Name | Ashton |
| Bedrooms | 3 |
| Bathrooms |
2
|
| Sq Ft | 1,466 |
| Garage | 2 |
Ashton
| Model Name | Ashton |
| Bedrooms | 3 |
| Bathrooms |
2
|
| Sq Ft | 1,466 |
| Garage | 2 |
| Address | 10084 Longtail Drive |
Ashton
| Model Name | Ashton |
| Bedrooms | 3 |
| Bathrooms |
2
|
| Sq Ft | 1,466 |
| Garage | 2 |
| Address | 10080 Longtail Drive |
Ashton
| Model Name | Ashton |
| Bedrooms | 3 |
| Bathrooms |
2
|
| Sq Ft | 1,466 |
| Garage | 2 |
| Address | 10076 Longtail Drive |
Ashton
| Model Name | Ashton |
| Bedrooms | 3 |
| Bathrooms |
2
|
| Sq Ft | 1,466 |
| Garage | 2 |
| Address | 10100 Longtail Drive |
Adams Ridge - Block
8 , Lot
34
Lot Information
| Availability |
Sold
|
| Block |
8
|
| Lot Number |
34
|
Birch
| Model Name | Birch |
| Bedrooms | 3 |
| Bathrooms |
2
|
| Sq Ft | 1,620 |
| Garage | 2 |
Adams Ridge - Block
8 , Lot
35
Lot Information
| Availability |
Sold
|
| Block |
8
|
| Lot Number |
35
|
Crestwood
| Model Name | Crestwood |
| Bedrooms | 3 - 4 |
| Bathrooms |
2
|
| Sq Ft | 2,009 |
| Garage | 2 |
Crestwood
| Model Name | Crestwood |
| Bedrooms | 3 |
| Bathrooms |
2
|
| Sq Ft | 2,009 |
| Garage | 2 |
| Address | 10436 Bellevue Ridge St |
Adams Ridge - Block
8 , Lot
36
Lot Information
| Availability |
Sold
|
| Block |
8
|
| Lot Number |
36
|
Ashton
| Model Name | Ashton |
| Bedrooms | 3 |
| Bathrooms |
2
|
| Sq Ft | 1,466 |
| Garage | 2 |
Ashton
| Model Name | Ashton |
| Bedrooms | 3 |
| Bathrooms |
2
|
| Sq Ft | 1,466 |
| Garage | 2 |
| Address | 10084 Longtail Drive |
Ashton
| Model Name | Ashton |
| Bedrooms | 3 |
| Bathrooms |
2
|
| Sq Ft | 1,466 |
| Garage | 2 |
| Address | 10080 Longtail Drive |
Ashton
| Model Name | Ashton |
| Bedrooms | 3 |
| Bathrooms |
2
|
| Sq Ft | 1,466 |
| Garage | 2 |
| Address | 10076 Longtail Drive |
Ashton
| Model Name | Ashton |
| Bedrooms | 3 |
| Bathrooms |
2
|
| Sq Ft | 1,466 |
| Garage | 2 |
| Address | 10100 Longtail Drive |
Adams Ridge - Block
8 , Lot
37
Lot Information
| Availability |
Sold
|
| Block |
8
|
| Lot Number |
37
|
Adams Ridge - Block
8 , Lot
38
Lot Information
| Availability |
Sold
|
| Block |
8
|
| Lot Number |
38
|
Adams Ridge - Block
8 , Lot
39
Lot Information
| Availability |
Sold
|
| Block |
8
|
| Lot Number |
39
|
Ashton
| Model Name | Ashton |
| Bedrooms | 3 |
| Bathrooms |
2
|
| Sq Ft | 1,466 |
| Garage | 2 |
Ashton
| Model Name | Ashton |
| Bedrooms | 3 |
| Bathrooms |
2
|
| Sq Ft | 1,466 |
| Garage | 2 |
| Address | 10084 Longtail Drive |
Ashton
| Model Name | Ashton |
| Bedrooms | 3 |
| Bathrooms |
2
|
| Sq Ft | 1,466 |
| Garage | 2 |
| Address | 10080 Longtail Drive |
Ashton
| Model Name | Ashton |
| Bedrooms | 3 |
| Bathrooms |
2
|
| Sq Ft | 1,466 |
| Garage | 2 |
| Address | 10076 Longtail Drive |
Ashton
| Model Name | Ashton |
| Bedrooms | 3 |
| Bathrooms |
2
|
| Sq Ft | 1,466 |
| Garage | 2 |
| Address | 10100 Longtail Drive |
Adams Ridge - Block
8 , Lot
41
Lot Information
| Availability |
Sold
|
| Block |
8
|
| Lot Number |
41
|
Crestwood
| Model Name | Crestwood |
| Bedrooms | 3 - 4 |
| Bathrooms |
2
|
| Sq Ft | 2,009 |
| Garage | 2 |
Crestwood
| Model Name | Crestwood |
| Bedrooms | 3 |
| Bathrooms |
2
|
| Sq Ft | 2,009 |
| Garage | 2 |
| Address | 10436 Bellevue Ridge St |
Adams Ridge - Block
8 , Lot
42
Lot Information
| Availability |
Sold
|
| Block |
8
|
| Lot Number |
42
|
Garnet
| Model Name | Garnet |
| Bedrooms | 4 - 6 |
| Bathrooms |
2.5 - 4
|
| Sq Ft | 2,807 |
| Garage | 2 |
Adams Ridge - Block
8 , Lot
43
Lot Information
| Availability |
Sold
|
| Block |
8
|
| Lot Number |
43
|
Crestwood
| Model Name | Crestwood |
| Bedrooms | 3 - 4 |
| Bathrooms |
2
|
| Sq Ft | 2,009 |
| Garage | 2 |
Crestwood
| Model Name | Crestwood |
| Bedrooms | 3 |
| Bathrooms |
2
|
| Sq Ft | 2,009 |
| Garage | 2 |
| Address | 10436 Bellevue Ridge St |
Adams Ridge - Block
8 , Lot
44
Lot Information
| Availability |
Sold
|
| Block |
8
|
| Lot Number |
44
|
Adams Ridge - Block
8 , Lot
45
Lot Information
| Availability |
Sold
|
| Block |
8
|
| Lot Number |
45
|
Alturas
| Model Name | Alturas |
| Bedrooms | 3 |
| Bathrooms |
2
|
| Sq Ft | 1,446 |
| Garage | 2 |
Alturas
| Model Name | Alturas |
| Bedrooms | 3 |
| Bathrooms |
2
|
| Sq Ft | 1,446 |
| Garage | 2 |
| Address | 17543 Colter Ridge Ave |
Adams Ridge - Block
8 , Lot
47
Lot Information
| Availability |
Sold
|
| Block |
8
|
| Lot Number |
47
|
Spruce
| Model Name | Spruce |
| Bedrooms | 4 - 7 |
| Bathrooms |
2.5 - 4
|
| Sq Ft | 3,065 |
| Garage | 2 |
Adams Ridge - Block
8 , Lot
48
Lot Information
| Availability |
Sold
|
| Block |
8
|
| Lot Number |
48
|
Brooke
| Model Name | Brooke |
| Bedrooms | 3 - 5 |
| Bathrooms |
2 - 3
|
| Sq Ft | 2,286 |
| Garage | 2 |
Adams Ridge - Block
8 , Lot
49
Lot Information
| Availability |
Sold
|
| Block |
8
|
| Lot Number |
49
|
Adams Ridge - Block
8 , Lot
50
Lot Information
| Availability |
Sold
|
| Block |
8
|
| Lot Number |
50
|
Crestwood
| Model Name | Crestwood |
| Bedrooms | 3 - 4 |
| Bathrooms |
2
|
| Sq Ft | 2,009 |
| Garage | 2 |
Crestwood
| Model Name | Crestwood |
| Bedrooms | 3 |
| Bathrooms |
2
|
| Sq Ft | 2,009 |
| Garage | 2 |
| Address | 10436 Bellevue Ridge St |
Adams Ridge - Block
8 , Lot
51
Lot Information
| Availability |
Sold
|
| Block |
8
|
| Lot Number |
51
|
Adams Ridge - Block
8 , Lot
52
Lot Information
| Availability |
Sold
|
| Block |
8
|
| Lot Number |
52
|
Garnet
| Model Name | Garnet |
| Bedrooms | 4 - 6 |
| Bathrooms |
2.5 - 4
|
| Sq Ft | 2,807 |
| Garage | 2 |
Adams Ridge - Block
8 , Lot
53
Lot Information
| Availability |
Sold
|
| Block |
8
|
| Lot Number |
53
|
Everest
| Model Name | Everest |
| Bedrooms | 3 - 4 |
| Bathrooms |
2.5
|
| Sq Ft | 1,700 |
| Garage | 2 |
Everest
| Model Name | Everest |
| Bedrooms | 4 |
| Bathrooms |
2
|
| Sq Ft | 1,700 |
| Garage | 2 |
| Address | 10092 Longtail Drive |
Everest
| Model Name | Everest |
| Bedrooms | 4 |
| Bathrooms |
2
|
| Sq Ft | 1,700 |
| Garage | 2 |
| Address | 10104 Longtail Drive |
Adams Ridge - Block
8 , Lot
54
Lot Information
| Availability |
Sold
|
| Block |
8
|
| Lot Number |
54
|
Crestwood
| Model Name | Crestwood |
| Bedrooms | 3 - 4 |
| Bathrooms |
2
|
| Sq Ft | 2,009 |
| Garage | 2 |
Crestwood
| Model Name | Crestwood |
| Bedrooms | 3 |
| Bathrooms |
2
|
| Sq Ft | 2,009 |
| Garage | 2 |
| Address | 10436 Bellevue Ridge St |
Adams Ridge - Block
8 , Lot
55
Lot Information
| Availability |
Sold
|
| Block |
8
|
| Lot Number |
55
|
Everest
| Model Name | Everest |
| Bedrooms | 3 - 4 |
| Bathrooms |
2.5
|
| Sq Ft | 1,700 |
| Garage | 2 |
Everest
| Model Name | Everest |
| Bedrooms | 4 |
| Bathrooms |
2
|
| Sq Ft | 1,700 |
| Garage | 2 |
| Address | 10092 Longtail Drive |
Everest
| Model Name | Everest |
| Bedrooms | 4 |
| Bathrooms |
2
|
| Sq Ft | 1,700 |
| Garage | 2 |
| Address | 10104 Longtail Drive |
Adams Ridge - Block
8 , Lot
56
Lot Information
| Availability |
Sold
|
| Block |
8
|
| Lot Number |
56
|
Spruce
| Model Name | Spruce |
| Bedrooms | 4 - 7 |
| Bathrooms |
2.5 - 4
|
| Sq Ft | 3,065 |
| Garage | 2 |
Adams Ridge - Block
8 , Lot
57
Lot Information
| Availability |
Sold
|
| Block |
8
|
| Lot Number |
57
|
Crestwood
| Model Name | Crestwood |
| Bedrooms | 3 - 4 |
| Bathrooms |
2
|
| Sq Ft | 2,009 |
| Garage | 2 |
Crestwood
| Model Name | Crestwood |
| Bedrooms | 3 |
| Bathrooms |
2
|
| Sq Ft | 2,009 |
| Garage | 2 |
| Address | 10436 Bellevue Ridge St |
Adams Ridge - Block
8 , Lot
58
Lot Information
| Availability |
Sold
|
| Block |
8
|
| Lot Number |
58
|
Alturas
| Model Name | Alturas |
| Bedrooms | 3 |
| Bathrooms |
2
|
| Sq Ft | 1,446 |
| Garage | 2 |
Alturas
| Model Name | Alturas |
| Bedrooms | 3 |
| Bathrooms |
2
|
| Sq Ft | 1,446 |
| Garage | 2 |
| Address | 17543 Colter Ridge Ave |
Adams Ridge - Block
8 , Lot
59
Lot Information
| Availability |
Sold
|
| Block |
8
|
| Lot Number |
59
|
Crestwood
| Model Name | Crestwood |
| Bedrooms | 3 - 4 |
| Bathrooms |
2
|
| Sq Ft | 2,009 |
| Garage | 2 |
Crestwood
| Model Name | Crestwood |
| Bedrooms | 3 |
| Bathrooms |
2
|
| Sq Ft | 2,009 |
| Garage | 2 |
| Address | 10436 Bellevue Ridge St |
Adams Ridge - Block
8 , Lot
60
Lot Information
| Availability |
Sold
|
| Block |
8
|
| Lot Number |
60
|
Birch
| Model Name | Birch |
| Bedrooms | 3 |
| Bathrooms |
2
|
| Sq Ft | 1,620 |
| Garage | 2 |
Adams Ridge - Block
8 , Lot
61
Lot Information
| Availability |
Sold
|
| Block |
8
|
| Lot Number |
61
|
Adams Ridge - Block
8 , Lot
62
Lot Information
| Availability |
Sold
|
| Block |
8
|
| Lot Number |
62
|
Birch
| Model Name | Birch |
| Bedrooms | 3 |
| Bathrooms |
2
|
| Sq Ft | 1,620 |
| Garage | 2 |
Adams Ridge - Block
8 , Lot
63
Lot Information
| Availability |
Sold
|
| Block |
8
|
| Lot Number |
63
|
Adams Ridge - Block
8 , Lot
64
Lot Information
| Availability |
Sold
|
| Block |
8
|
| Lot Number |
64
|
Adams Ridge - Block
9 , Lot
2
Lot Information
| Availability |
Sold
|
| Block |
9
|
| Lot Number |
2
|
Adams Ridge - Block
9 , Lot
3
Lot Information
| Availability |
Sold
|
| Block |
9
|
| Lot Number |
3
|
Ashton
| Model Name | Ashton |
| Bedrooms | 3 |
| Bathrooms |
2
|
| Sq Ft | 1,466 |
| Garage | 2 |
Ashton
| Model Name | Ashton |
| Bedrooms | 3 |
| Bathrooms |
2
|
| Sq Ft | 1,466 |
| Garage | 2 |
| Address | 10084 Longtail Drive |
Ashton
| Model Name | Ashton |
| Bedrooms | 3 |
| Bathrooms |
2
|
| Sq Ft | 1,466 |
| Garage | 2 |
| Address | 10080 Longtail Drive |
Ashton
| Model Name | Ashton |
| Bedrooms | 3 |
| Bathrooms |
2
|
| Sq Ft | 1,466 |
| Garage | 2 |
| Address | 10076 Longtail Drive |
Ashton
| Model Name | Ashton |
| Bedrooms | 3 |
| Bathrooms |
2
|
| Sq Ft | 1,466 |
| Garage | 2 |
| Address | 10100 Longtail Drive |
Adams Ridge - Block
9 , Lot
4
Lot Information
| Availability |
Sold
|
| Block |
9
|
| Lot Number |
4
|
Adams Ridge - Block
9 , Lot
6
Lot Information
| Availability |
Sold
|
| Block |
9
|
| Lot Number |
6
|
Everest
| Model Name | Everest |
| Bedrooms | 3 - 4 |
| Bathrooms |
2.5
|
| Sq Ft | 1,700 |
| Garage | 2 |
Everest
| Model Name | Everest |
| Bedrooms | 4 |
| Bathrooms |
2
|
| Sq Ft | 1,700 |
| Garage | 2 |
| Address | 10092 Longtail Drive |
Everest
| Model Name | Everest |
| Bedrooms | 4 |
| Bathrooms |
2
|
| Sq Ft | 1,700 |
| Garage | 2 |
| Address | 10104 Longtail Drive |
Adams Ridge - Block
9 , Lot
7
Lot Information
| Availability |
Sold
|
| Block |
9
|
| Lot Number |
7
|
Crestwood
| Model Name | Crestwood |
| Bedrooms | 3 - 4 |
| Bathrooms |
2
|
| Sq Ft | 2,009 |
| Garage | 2 |
Crestwood
| Model Name | Crestwood |
| Bedrooms | 3 |
| Bathrooms |
2
|
| Sq Ft | 2,009 |
| Garage | 2 |
| Address | 10436 Bellevue Ridge St |
Adams Ridge - Block
9 , Lot
9
Lot Information
| Availability |
Sold
|
| Block |
9
|
| Lot Number |
9
|
Brooke
| Model Name | Brooke |
| Bedrooms | 3 - 5 |
| Bathrooms |
2 - 3
|
| Sq Ft | 2,286 |
| Garage | 2 |
Adams Ridge - Block
9 , Lot
10
Lot Information
| Availability |
Sold
|
| Block |
9
|
| Lot Number |
10
|
Crestwood
| Model Name | Crestwood |
| Bedrooms | 3 - 4 |
| Bathrooms |
2
|
| Sq Ft | 2,009 |
| Garage | 2 |
Crestwood
| Model Name | Crestwood |
| Bedrooms | 3 |
| Bathrooms |
2
|
| Sq Ft | 2,009 |
| Garage | 2 |
| Address | 10436 Bellevue Ridge St |
Adams Ridge - Block
9 , Lot
11
Lot Information
| Availability |
Sold
|
| Block |
9
|
| Lot Number |
11
|
Ashton
| Model Name | Ashton |
| Bedrooms | 3 |
| Bathrooms |
2
|
| Sq Ft | 1,466 |
| Garage | 2 |
Ashton
| Model Name | Ashton |
| Bedrooms | 3 |
| Bathrooms |
2
|
| Sq Ft | 1,466 |
| Garage | 2 |
| Address | 10084 Longtail Drive |
Ashton
| Model Name | Ashton |
| Bedrooms | 3 |
| Bathrooms |
2
|
| Sq Ft | 1,466 |
| Garage | 2 |
| Address | 10080 Longtail Drive |
Ashton
| Model Name | Ashton |
| Bedrooms | 3 |
| Bathrooms |
2
|
| Sq Ft | 1,466 |
| Garage | 2 |
| Address | 10076 Longtail Drive |
Ashton
| Model Name | Ashton |
| Bedrooms | 3 |
| Bathrooms |
2
|
| Sq Ft | 1,466 |
| Garage | 2 |
| Address | 10100 Longtail Drive |
Adams Ridge - Block
9 , Lot
12
Lot Information
| Availability |
Sold
|
| Block |
9
|
| Lot Number |
12
|
Alturas
| Model Name | Alturas |
| Bedrooms | 3 |
| Bathrooms |
2
|
| Sq Ft | 1,446 |
| Garage | 2 |
Alturas
| Model Name | Alturas |
| Bedrooms | 3 |
| Bathrooms |
2
|
| Sq Ft | 1,446 |
| Garage | 2 |
| Address | 17543 Colter Ridge Ave |
Adams Ridge - Block
9 , Lot
13
Lot Information
| Availability |
Sold
|
| Block |
9
|
| Lot Number |
13
|
Adams Ridge - Block
9 , Lot
17
Lot Information
| Availability |
Sold
|
| Block |
9
|
| Lot Number |
17
|
Spruce
| Model Name | Spruce |
| Bedrooms | 4 - 7 |
| Bathrooms |
2.5 - 4
|
| Sq Ft | 3,065 |
| Garage | 2 |
Adams Ridge - Block
9 , Lot
18
Lot Information
| Availability |
Sold
|
| Block |
9
|
| Lot Number |
18
|
Everest
| Model Name | Everest |
| Bedrooms | 3 - 4 |
| Bathrooms |
2.5
|
| Sq Ft | 1,700 |
| Garage | 2 |
Everest
| Model Name | Everest |
| Bedrooms | 4 |
| Bathrooms |
2
|
| Sq Ft | 1,700 |
| Garage | 2 |
| Address | 10092 Longtail Drive |
Everest
| Model Name | Everest |
| Bedrooms | 4 |
| Bathrooms |
2
|
| Sq Ft | 1,700 |
| Garage | 2 |
| Address | 10104 Longtail Drive |
Adams Ridge - Block
9 , Lot
19
Lot Information
| Availability |
Sold
|
| Block |
9
|
| Lot Number |
19
|
Garnet
| Model Name | Garnet |
| Bedrooms | 4 - 6 |
| Bathrooms |
2.5 - 4
|
| Sq Ft | 2,807 |
| Garage | 2 |
Adams Ridge - Block
9 , Lot
20
Lot Information
| Availability |
Sold
|
| Block |
9
|
| Lot Number |
20
|
Adams Ridge - Block
9 , Lot
21
Lot Information
| Availability |
Sold
|
| Block |
9
|
| Lot Number |
21
|
Adams Ridge - Block
9 , Lot
22
Lot Information
| Availability |
Sold
|
| Block |
9
|
| Lot Number |
22
|
Adams Ridge - Block
9 , Lot
23
Lot Information
| Availability |
Sold
|
| Block |
9
|
| Lot Number |
23
|
Ashton
| Model Name | Ashton |
| Bedrooms | 3 |
| Bathrooms |
2
|
| Sq Ft | 1,466 |
| Garage | 2 |
Ashton
| Model Name | Ashton |
| Bedrooms | 3 |
| Bathrooms |
2
|
| Sq Ft | 1,466 |
| Garage | 2 |
| Address | 10084 Longtail Drive |
Ashton
| Model Name | Ashton |
| Bedrooms | 3 |
| Bathrooms |
2
|
| Sq Ft | 1,466 |
| Garage | 2 |
| Address | 10080 Longtail Drive |
Ashton
| Model Name | Ashton |
| Bedrooms | 3 |
| Bathrooms |
2
|
| Sq Ft | 1,466 |
| Garage | 2 |
| Address | 10076 Longtail Drive |
Ashton
| Model Name | Ashton |
| Bedrooms | 3 |
| Bathrooms |
2
|
| Sq Ft | 1,466 |
| Garage | 2 |
| Address | 10100 Longtail Drive |
Adams Ridge - Block
9 , Lot
24
Lot Information
| Availability |
Sold
|
| Block |
9
|
| Lot Number |
24
|
Everest
| Model Name | Everest |
| Bedrooms | 3 - 4 |
| Bathrooms |
2.5
|
| Sq Ft | 1,700 |
| Garage | 2 |
Everest
| Model Name | Everest |
| Bedrooms | 4 |
| Bathrooms |
2
|
| Sq Ft | 1,700 |
| Garage | 2 |
| Address | 10092 Longtail Drive |
Everest
| Model Name | Everest |
| Bedrooms | 4 |
| Bathrooms |
2
|
| Sq Ft | 1,700 |
| Garage | 2 |
| Address | 10104 Longtail Drive |
Adams Ridge - Block
9 , Lot
25
Lot Information
| Availability |
Sold
|
| Block |
9
|
| Lot Number |
25
|
Crestwood
| Model Name | Crestwood |
| Bedrooms | 3 - 4 |
| Bathrooms |
2
|
| Sq Ft | 2,009 |
| Garage | 2 |
Crestwood
| Model Name | Crestwood |
| Bedrooms | 3 |
| Bathrooms |
2
|
| Sq Ft | 2,009 |
| Garage | 2 |
| Address | 10436 Bellevue Ridge St |
Adams Ridge - Block
9 , Lot
26
Lot Information
| Availability |
Sold
|
| Block |
9
|
| Lot Number |
26
|
Ashton
| Model Name | Ashton |
| Bedrooms | 3 |
| Bathrooms |
2
|
| Sq Ft | 1,466 |
| Garage | 2 |
Ashton
| Model Name | Ashton |
| Bedrooms | 3 |
| Bathrooms |
2
|
| Sq Ft | 1,466 |
| Garage | 2 |
| Address | 10084 Longtail Drive |
Ashton
| Model Name | Ashton |
| Bedrooms | 3 |
| Bathrooms |
2
|
| Sq Ft | 1,466 |
| Garage | 2 |
| Address | 10080 Longtail Drive |
Ashton
| Model Name | Ashton |
| Bedrooms | 3 |
| Bathrooms |
2
|
| Sq Ft | 1,466 |
| Garage | 2 |
| Address | 10076 Longtail Drive |
Ashton
| Model Name | Ashton |
| Bedrooms | 3 |
| Bathrooms |
2
|
| Sq Ft | 1,466 |
| Garage | 2 |
| Address | 10100 Longtail Drive |
Adams Ridge - Block
9 , Lot
27
Lot Information
| Availability |
Sold
|
| Block |
9
|
| Lot Number |
27
|
Adams Ridge - Block
9 , Lot
28
Lot Information
| Availability |
Sold
|
| Block |
9
|
| Lot Number |
28
|
Alturas
| Model Name | Alturas |
| Bedrooms | 3 |
| Bathrooms |
2
|
| Sq Ft | 1,446 |
| Garage | 2 |
Alturas
| Model Name | Alturas |
| Bedrooms | 3 |
| Bathrooms |
2
|
| Sq Ft | 1,446 |
| Garage | 2 |
| Address | 17543 Colter Ridge Ave |
Top